Urbandale Data Center 10740 Northwest Aurora Avenue
Urbandale, IA 50322
For Lease
10,608 sqft
Lease Price
Contact Broker For Pricing
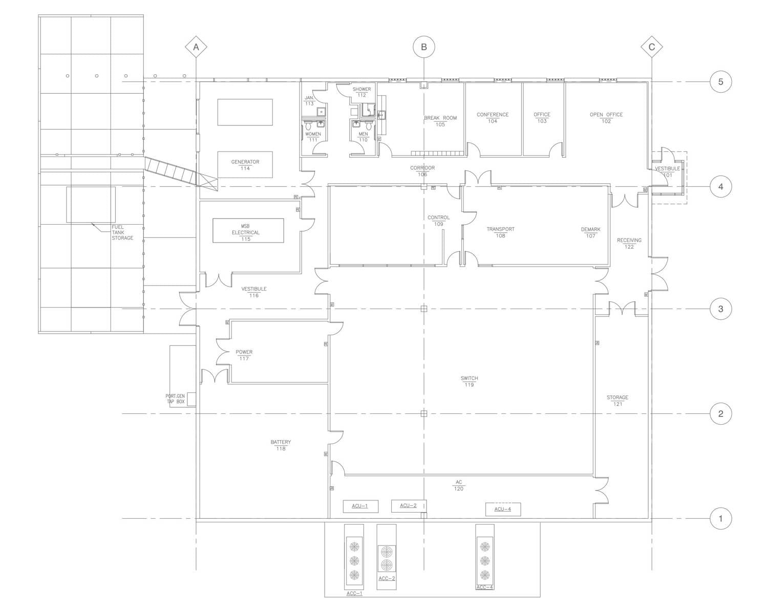
View Floor Plans
Brochure
Map
Data Center For Lease - Available Immediately
Central location within the Des Moines MSA
Exceptional access to I-35, I-80, and I-235.
Mix of office, industrial and retail uses in immidiate area
Get in touch
Bill Wright
Chris Pendroy CCIM, SIOR
Grant Wright
Dakota Little
+ Heavy, redundant power with concrete construction
− Site service capacity : 1200 amp Trip Breaker on Utility Service
+ Back up Generators, multiple Liebeirt units.
− Generator KW: 600kW
+ Heavy data center infrastructure.
+ Concrete Walls and Ceiling
+ HVAC : 50 tons of cooling capacity in technical space
− Site service capacity : 1200 amp Trip Breaker on Utility Service
+ Back up Generators, multiple Liebeirt units.
− Generator KW: 600kW
+ Heavy data center infrastructure.
+ Concrete Walls and Ceiling
+ HVAC : 50 tons of cooling capacity in technical space
Total Space Available
10,608 sqft
Lease Type
Direct
Lease Rate
Contact Broker For Pricing
Get in touch
Bill Wright
Chris Pendroy CCIM, SIOR
Grant Wright
Dakota Little