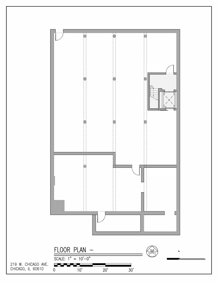
219 West Chicago 219 West Chicago Avenue
Chicago, IL 60654
Sale Price
Contact Broker For Pricing
View Floor Plans
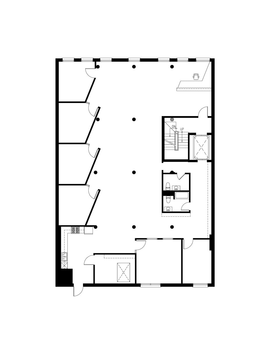
Basement
Suite 100 - 3,057 SF
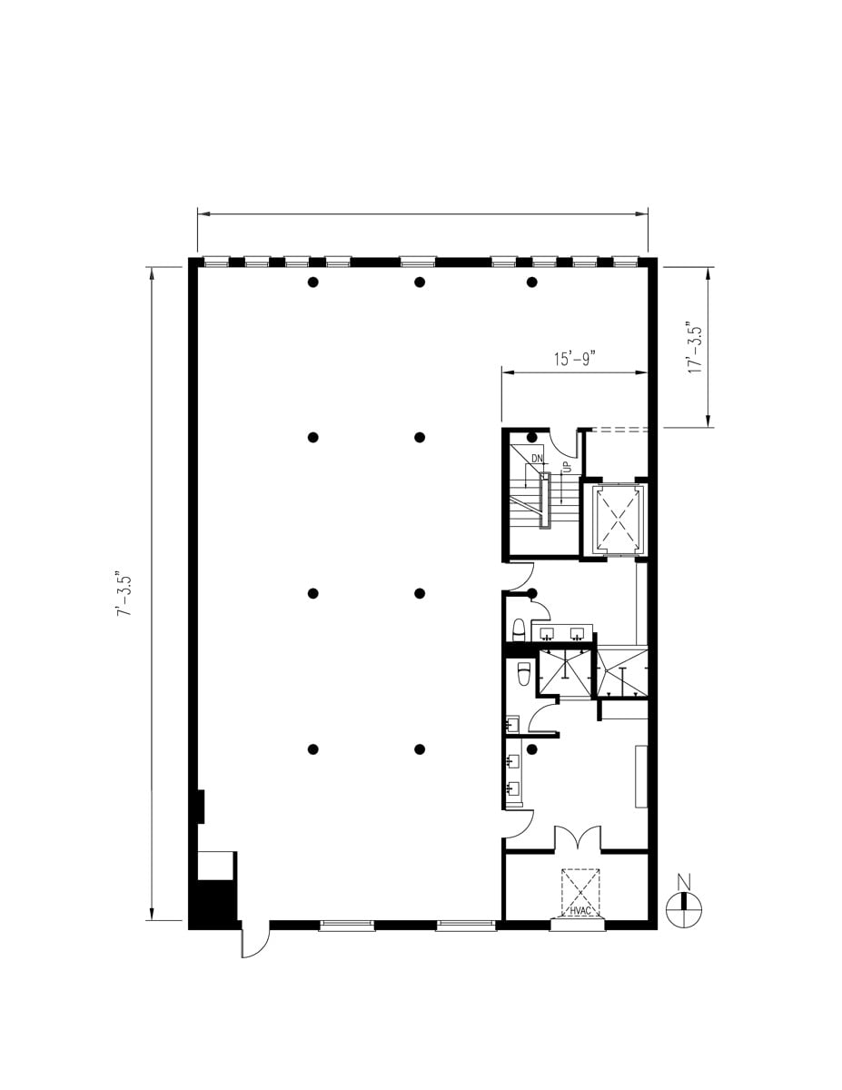
Suite 200 - 3,300 SF
Suite 300 - 3,318 SF
Suite 400 (Residential) - 3,300 SF
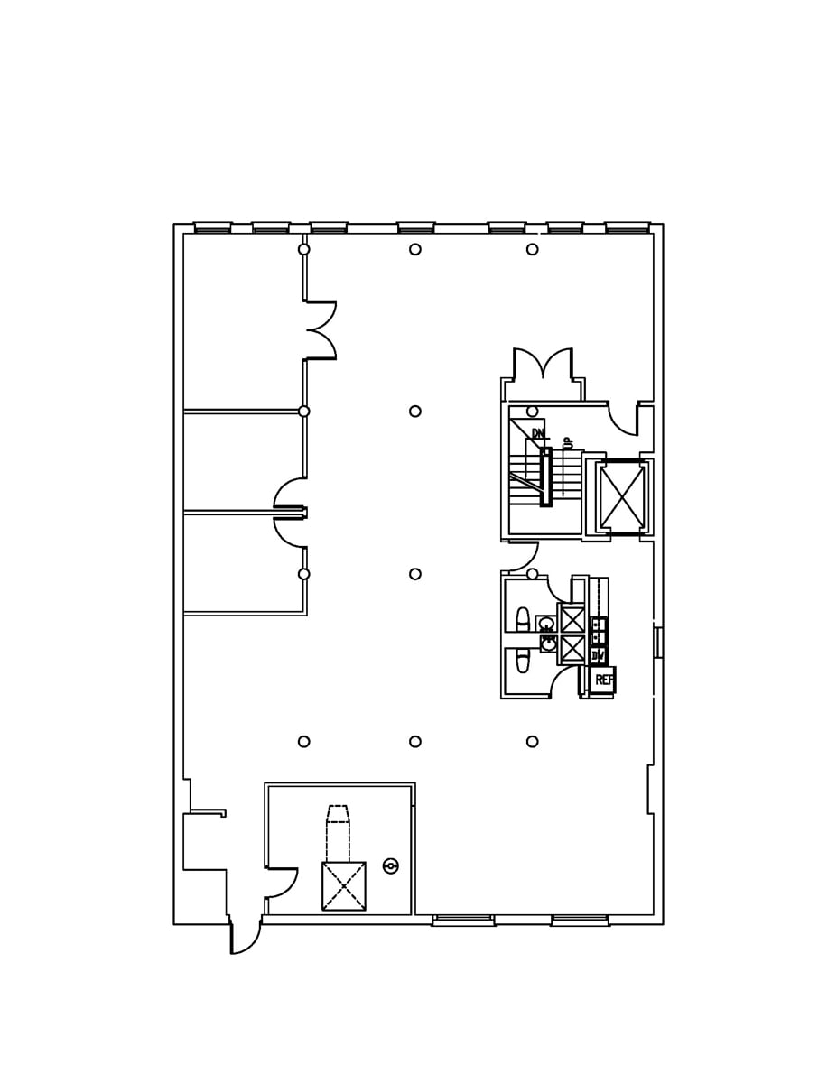
Suite 500F - 2,127 SF
Suite 500R - 982 SF
Suite 600 - 3,486 SF
Brochure
Map
Flex Industrial For Sale - Available February 2025
19,615 SF Boutique River North Chicago Mixed-Use Gem with 6.6 Years of WALT
61% Occupied, Cash Flowing Asset with 6.6 Years of WALT
Owner/User Opportunity on 3rd Floor (3,318 SF) - Potential Residential Conversion
Rare On-Site Parking - 12 Spaces in Rear of Property
DX-5 Mixed-Use Zoning, Creating Flexibility for Future Redevelopment
Transit-Oriented Location Near CTA Brown/Purple Line & Bus Stops
Get in touch
Dominic Soltero
DS
Tom Svoboda
TS
Encompassing 19,615 square feet, the Property offers a creative loft office profile catering to the creative/tech talent and business needs in River North. The Property is centrally located and walkable Old Town, the Gold Coast, and River West.
The Property is currently 61% leased, with 7,582 SF of vacancy that is ready for its next user. Additionally, the current tenant roster is 23% under market rents for comparable assets, allowing a new investor to immediately boost NOI.
The Property is strategically located near public transit stops such as the Chicago & LaSalle bus stop located just outside the premises, and the Chicago CTA (Brown and Purple Lines) station, only a 1-minute walk away.
The Property is currently 61% leased, with 7,582 SF of vacancy that is ready for its next user. Additionally, the current tenant roster is 23% under market rents for comparable assets, allowing a new investor to immediately boost NOI.
The Property is strategically located near public transit stops such as the Chicago & LaSalle bus stop located just outside the premises, and the Chicago CTA (Brown and Purple Lines) station, only a 1-minute walk away.
Sale Price
Contact Broker For Pricing
Transit/Subway
CTA Brown & Purple Line - Chicago Stop
1 blocks
1 min.
/walk
Highway
I-90/I-94 Expressway
0.3 miles
6 min.
/drive
| 1 Mile | |
|---|---|
| Population | 118,574 |
| Households | 76,989 |
| Percent College Educated | 87.4% |
| Avg. Household Income | $184,041 |
| Median Household Income | $539,884 |
Get in touch
Dominic Soltero
DS
Tom Svoboda
TS