10604 Justin Dr 10604 Justin Drive

Urbandale, IA 50322

For Lease

21,000 sqft

Lease Price

$8.20
View Floor Plans
Brochure
Map
Flex Industrial For Lease - Available September 2025
Office/Flex For Lease
Get in touch
Ajdin Nadarevic
Ajdin Nadarevic
Ben Probst
Ben Probst
The property is well-situated just west of busy 100th Street in Des Moines. The attractive, well-maintained property has ample parking and easy access to I-35/80.

Total Space Available

21,000 sqft

Lease Type

Direct

Lease Rate

$8.20

Lease Rate Type

Triple Net (NNN)
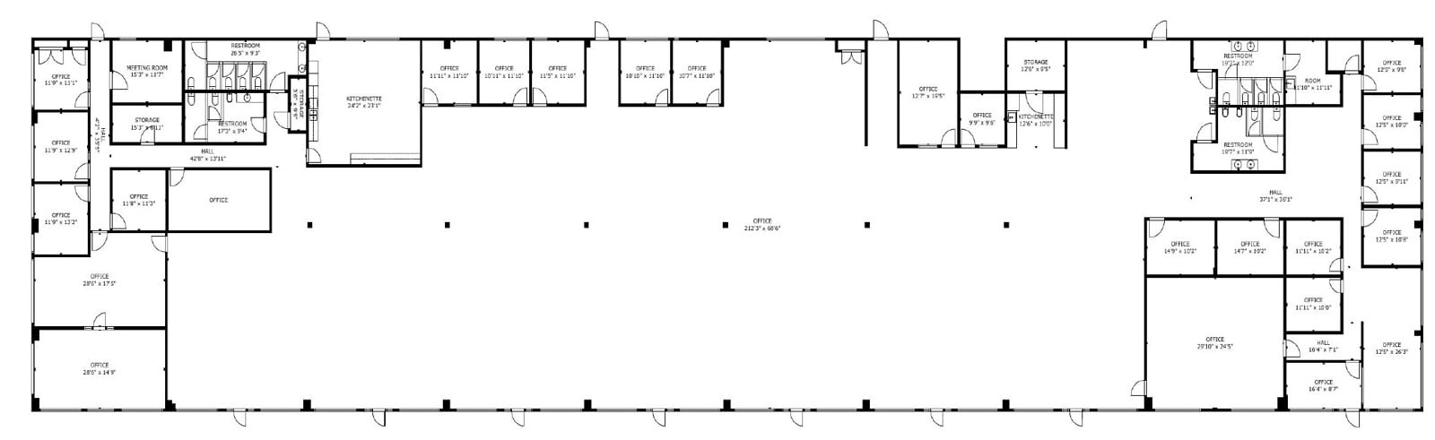
Floorplan
Get in touch
Ajdin Nadarevic
Ajdin Nadarevic
Ben Probst
Ben Probst