52 Market Street

Scotia, NY 12302

For Sale

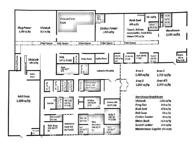
23,754 sqft

Sale Price

$1,400,000
View Floor Plans
Brochure
Map
Flex Industrial For Sale - Available Immediately
Office/Warehouse Building for Sale
Site is ±2.70 acres
Two (2) loading docks
Ceiling heights range from ±14’ - 19’
±65 Parking spaces
Natural gas heating
±2.9 mi away from the Schenectady County Airport
±3.4 mi away from the Glenville Business and Technology Park
Get in touch
Kyle Rueckert
Kyle Rueckert
Craig Darby
Lic: Associate Real Estate Broker
Craig Darby
New York - Albany
Offered for sale is a ±23,754 SF office/warehouse building in Scotia, New York. Property is currently tax exempt.
From North Ballston Avenue, to Bancker Avenue, to Uncas Drive, to Parkland Avenue to Market Street

Total Space Available

23,754 sqft

Sale Price

$1,400,000
Floor Plan edit
Get in touch
Kyle Rueckert
Kyle Rueckert
Craig Darby
Lic: Associate Real Estate Broker
Craig Darby
New York - Albany