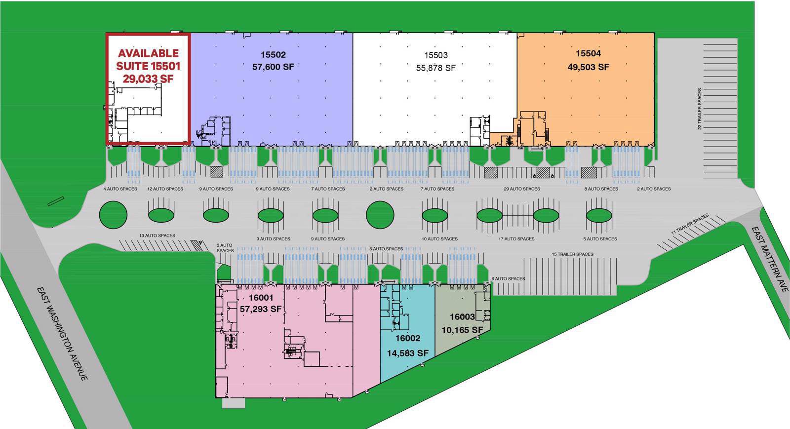
1550- 1600 E Washington Ave 1550 East Washington Avenue

Des Moines, IA 50316

Lease Price

$4.95
Brochure
Map
Industrial For Lease - Available Immediately
22’ Clear Height
Class I-IV sprinkler coverage (.365 GPM over 2,600 SF)
Finished office space
Located in popular industrial park near I-80/35
Get in touch
Chris Pendroy CCIM, SIOR
Chris Pendroy CCIM, SIOR
Grant Wright, CCIM
Grant Wright, CCIM
Suite 15501
29,033 sqft
Industrial
Lease
$4.95/sqft/yr

Status

Available

Lease Type

Direct

Lease Type

Direct

Lease Rate

$4.95

Lease Rate Type

Triple Net (NNN)
Get in touch
Chris Pendroy CCIM, SIOR
Chris Pendroy CCIM, SIOR
Grant Wright, CCIM
Grant Wright, CCIM