LBA Logistics Center III 14800 West Schulte Road
Tracy, CA 95377
For Lease
165,976 - 678,913 sqft
Lease Price
Contact Broker For Pricing
View Floor Plans
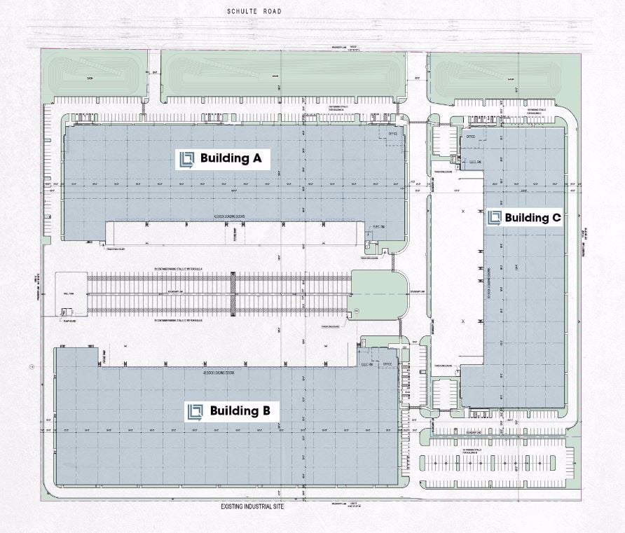
LBA Master Site Plan.JPG
LBA-Building C site plan.JPG
LBA-Building A site plan.JPG
LBA-Building B site plan.JPG
Brochure
Map
Industrial For Lease - Available September 2024
3-Building Logistics Park - Prime West Tracy Location
Get in touch
Thomas Davis
Lic: 00880761
Robert Taylor
Lic: 00937509
Daniel Davis
Lic: 01964386
Ryan Davis
Lic: 02167375
Building A
Building size: ±231,281 SF
Office size: ±2,968 SF
Power: 2,000 Amps Expandable to 4,000 Amps
Loading Doors: 42
Slab Thickness: 6" Reinforced
Parking Stalls: 195
Truck Stalls: 56
Grade Level Doors: 2
Clear Height: 36'
Column Spacing: 56' x 50'
Truck Court Depth: 185'
Building B
Building size: ±281,545 SF
Office size: ±3,006 SF
Power: 2,000 Amps Expandable to 4,000 Amps
Loading Doors: 43
Slab Thickness: 6" Reinforced
Parking Stalls: 191
Truck Stalls: 55
Grade Level Doors: 2
Clear Height: 36'
Column Spacing: 56' x 50'
Truck Court Depth: 185'
Building C
Building size: ±165,976 SF
Office size: ±2,964 SF
Power: 2,000 Amps Expandable to 4,000 Amps
Loading Doors: 30
Slab Thickness: 6" Reinforced
Parking Stalls: 136
Grade Level Doors: 2
Clear Height: 36'
Column Spacing: 56' x 50'
Truck Court Depth: 130'
Building size: ±231,281 SF
Office size: ±2,968 SF
Power: 2,000 Amps Expandable to 4,000 Amps
Loading Doors: 42
Slab Thickness: 6" Reinforced
Parking Stalls: 195
Truck Stalls: 56
Grade Level Doors: 2
Clear Height: 36'
Column Spacing: 56' x 50'
Truck Court Depth: 185'
Building B
Building size: ±281,545 SF
Office size: ±3,006 SF
Power: 2,000 Amps Expandable to 4,000 Amps
Loading Doors: 43
Slab Thickness: 6" Reinforced
Parking Stalls: 191
Truck Stalls: 55
Grade Level Doors: 2
Clear Height: 36'
Column Spacing: 56' x 50'
Truck Court Depth: 185'
Building C
Building size: ±165,976 SF
Office size: ±2,964 SF
Power: 2,000 Amps Expandable to 4,000 Amps
Loading Doors: 30
Slab Thickness: 6" Reinforced
Parking Stalls: 136
Grade Level Doors: 2
Clear Height: 36'
Column Spacing: 56' x 50'
Truck Court Depth: 130'
Minimum Space Available
165,976 sqft
Total Space Available
678,913 sqft
Lease Type
Direct
Lease Rate
Contact Broker For Pricing
Lease Rate Type
Net
Get in touch
Thomas Davis
Lic: 00880761
Robert Taylor
Lic: 00937509
Daniel Davis
Lic: 01964386
Ryan Davis
Lic: 02167375