Rovana Circle
Sacramento, CA 95828
Sale Price
Contact Broker For Pricing
View Floor Plans
Brochure
Map
Industrial For Sale - Available Immediately
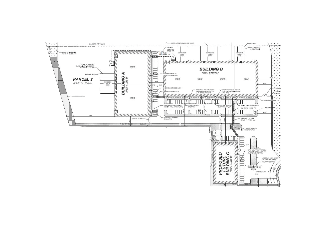
±12.14 gross acres of industrial development
Close access to Highways 50 & 99
Convenient access to Sacramento International Airport & Downtown Sacramento
Get in touch
Sean Merold, SIOR
Lic: 01803204
Mike Zimmerman, SIOR
Lic: 01514055
Ryan DeAngelis, SIOR
Lic: 01280330
Jimmy Landis
Lic: 02130311
+ ±12.14 gross acres
+ APN # 064-0010-164
+ M-2 zoning (Heavy Industrial) - City of Sacramento
+ Utilities: Electricity (SMUD); natural gas (PG&E), water (City of Sacramento) and sewer (Sacramento Area Sewer District) are stubbed to the site
+ ± 100 driveway cut on Rovana Circle
+ Rail possible - ±597 feet along UP rail line at west end of the property
+ One of the last remaining large parcels available along the Highway 50 corridor
+ Fully entitled for
±101,250 SF of industrial development
+ Located in Sacramento’s largest industrial submarket (Power Inn)
+ APN # 064-0010-164
+ M-2 zoning (Heavy Industrial) - City of Sacramento
+ Utilities: Electricity (SMUD); natural gas (PG&E), water (City of Sacramento) and sewer (Sacramento Area Sewer District) are stubbed to the site
+ ± 100 driveway cut on Rovana Circle
+ Rail possible - ±597 feet along UP rail line at west end of the property
+ One of the last remaining large parcels available along the Highway 50 corridor
+ Fully entitled for
±101,250 SF of industrial development
+ Located in Sacramento’s largest industrial submarket (Power Inn)
Rovana Circle, Sacramento, CA
Building A
41,250 sqft
Industrial
Status
Available
Building B
60,000 sqft
Industrial
Status
Available
Sale Price
Contact Broker For Pricing
Get in touch
Sean Merold, SIOR
Lic: 01803204
Mike Zimmerman, SIOR
Lic: 01514055
Ryan DeAngelis, SIOR
Lic: 01280330
Jimmy Landis
Lic: 02130311