3844 South Loop 1604 East 3844 South Loop 1604 East
San Antonio, TX 78264
For Sale
57,125 sqft
Sale Price
Contact Broker For Pricing
View Floor Plans
Brochure
Map
Industrial For Sale - Available Immediately
57,125 SF Stand-alone Industrial Facility with Large Secured Yard for Sale
Get in touch
Rob Burlingame
Josh Aguilar
Brad O'Neill
BO
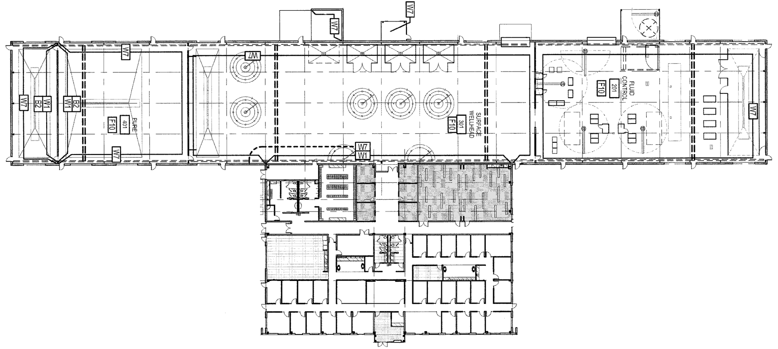
High Quality Office: Roughly +/- 17,500 SF of well finished office space with a mix of private offices, conference/ training rooms, restrooms/lockers and a reception area
Warehouse & Yard: Functional warehouse and production space with +/- 25-foot clear height with a concrete apron and direct access to the +/- 14 acre secured yard area
Fully Spirnklered: Fully equipped with both wet and dry fire sprinkler systems
Crane Served: Equipped with multiple bridge and jib cranes: 4 bridge cranes (3 x 10 ton, 1 x 5 ton) and 11 jib cranes (7 x 3 ton & 4 x 1/2 ton)
Paint Booths: Two existing paint booths in place in the warehouse production area
Drive Thru Bays: Configured with 14 automatic roll up doors (12’x16’) allowing for 6 drive thru bays
Wash Bay: Vehicle wash bay on the exterior of the warehouse with sand trap and oil/sand seperators in place
Test Cells: Equipped with 4 test cell bunkers: 3 at 15’x20’ and 1 at 20’x80’ drive thru
Compressed Air: Warehouse is fully plumbed for compressed air throughout, served by two 50 hp air compressors
TOTAL BUILDING
+ 57,125 SF
SITE SIZE
+ 36.14 AC
OFFICE SPECIFICATIONS
• +17,500 SF office
• 33 Private Offices
• 6 Conference Rooms
• Reception Area
• Men’s & Women’s Restrooms
• Men’s & Women’s Locker Rooms
• Key Card Access
• High End Finishes
WAREHOUSE SPECIFICATIONS
• 14 drive in doors (12’x16’)
• Gas forced air
• 4 Bridge cranes (10 & 5 ton)
• 11 Jib cranes (3 & 1/2 ton)
• Sidelights throughout
• Compressed air in place
• Wash bay
• High efficiency lighting
Warehouse & Yard: Functional warehouse and production space with +/- 25-foot clear height with a concrete apron and direct access to the +/- 14 acre secured yard area
Fully Spirnklered: Fully equipped with both wet and dry fire sprinkler systems
Crane Served: Equipped with multiple bridge and jib cranes: 4 bridge cranes (3 x 10 ton, 1 x 5 ton) and 11 jib cranes (7 x 3 ton & 4 x 1/2 ton)
Paint Booths: Two existing paint booths in place in the warehouse production area
Drive Thru Bays: Configured with 14 automatic roll up doors (12’x16’) allowing for 6 drive thru bays
Wash Bay: Vehicle wash bay on the exterior of the warehouse with sand trap and oil/sand seperators in place
Test Cells: Equipped with 4 test cell bunkers: 3 at 15’x20’ and 1 at 20’x80’ drive thru
Compressed Air: Warehouse is fully plumbed for compressed air throughout, served by two 50 hp air compressors
TOTAL BUILDING
+ 57,125 SF
SITE SIZE
+ 36.14 AC
OFFICE SPECIFICATIONS
• +17,500 SF office
• 33 Private Offices
• 6 Conference Rooms
• Reception Area
• Men’s & Women’s Restrooms
• Men’s & Women’s Locker Rooms
• Key Card Access
• High End Finishes
WAREHOUSE SPECIFICATIONS
• 14 drive in doors (12’x16’)
• Gas forced air
• 4 Bridge cranes (10 & 5 ton)
• 11 Jib cranes (3 & 1/2 ton)
• Sidelights throughout
• Compressed air in place
• Wash bay
• High efficiency lighting
This facility offers a unique combination of functional industrial, high-end office and secured yard space well suited for a stand-alone industrial occupant with access directly off of the Loop 1604 access road. Its location provides easy access to both IH-37 and US Highway 281.
The property contains just over 36 acres on the total site with +/- 57,125 SF of combined office and industrial space. The yard area is fully secured, lighted with a stabilized base material surface. The office and industrial space each offer a unique set of upgraded amenities allowing users to start operations quickly.
The facility is ideal for owner occupants seeking a heavy industrial facility fully equipped with cranes, service features and large outdoor storage capabilities.
The property contains just over 36 acres on the total site with +/- 57,125 SF of combined office and industrial space. The yard area is fully secured, lighted with a stabilized base material surface. The office and industrial space each offer a unique set of upgraded amenities allowing users to start operations quickly.
The facility is ideal for owner occupants seeking a heavy industrial facility fully equipped with cranes, service features and large outdoor storage capabilities.
Total Space Available
57,125 sqft
Sale Price
Contact Broker For Pricing
Get in touch
Rob Burlingame
Josh Aguilar
Brad O'Neill
BO