7320 Power Line Road
Sacramento, CA 95837
Lease Price
Contact Broker For Pricing
View Floor Plans
Available .PNG
Spec Office Site plan.PNG
Brochure
Map
Industrial For Lease - Available Immediately
METRO AIR PARK - ±87,915 SF AVAILABLE FOR LEASE
Get in touch
Mike Zimmerman, SIOR
Lic: 01514055
Sean Merold, SIOR
Lic: 01803204
Ryan DeAngelis, SIOR
Lic: 01280330
Jimmy Landis
Lic: 02130311
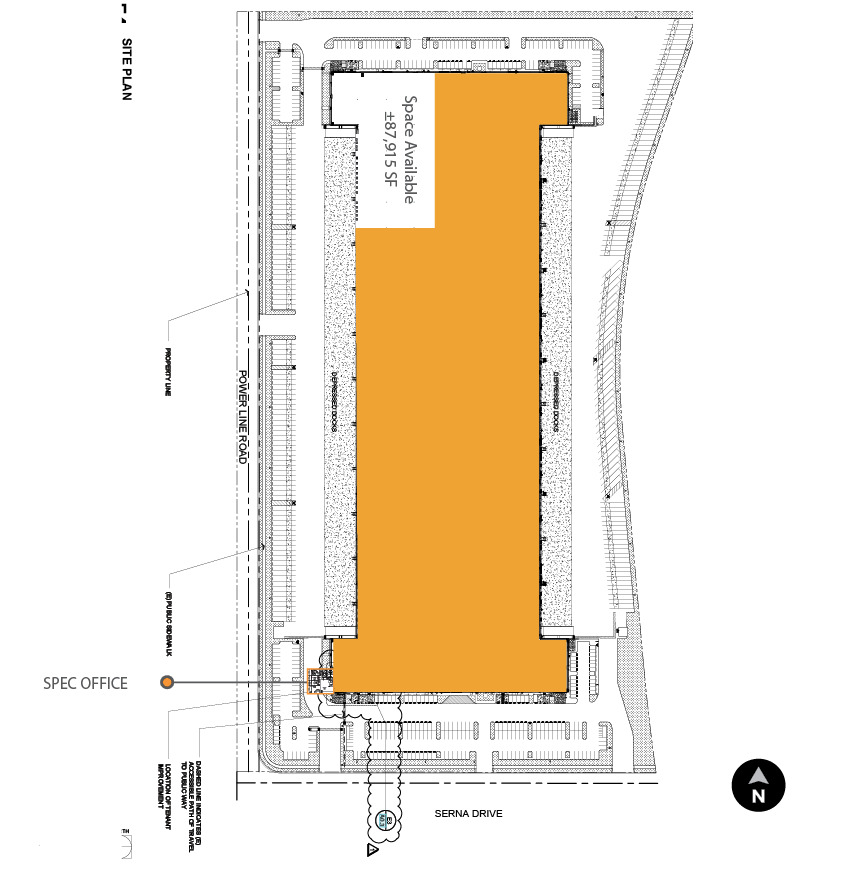
-BUILDING SIZE: ±87,915 SF
-PARCEL SIZE: 31.7 ACRES
-COVERAGE: 38.5%
-CLEAR HEIGHT: 36’
-COLUMN SPACING: 56’ x 60’
-GRADE LEVEL DOORS: 1 - 12’ X 14’
-DOCK DOORS: 19 - 9’ x 10’ W/4 PIT LEVELERS
-SLAB: 7” CONCRETE
-ROOF: METAL W/ R-13 INSULATION
-ELECTRICAL: 400A
-FIRE SUPPRESSION: ESFR
-SKYLIGHTS: 1 PER 2,000 SF
-BUILDING DEPTH: 517’
-AUTO STALLS: ±55
-TRAILER STALLS: ±29
-LIGHTING: LED MOTION SENSOR WAREHOUSE LIGHTS
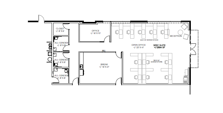
OFFICE SPEC:
-+SPEC SUITE: ±2,884 SF
-OPEN OFFICE: ±33’ X 41’
-OFFICE: ±16’ X 10’
-BREAK ROOM: ±16’ X 21’
-WORK STATIONS: 11 - ±6’ X 8’
-ALL GENDER RESTROOMS: 3 - ±8’ X 8’
-CLOSET: ±8’ X 6’
-PARCEL SIZE: 31.7 ACRES
-COVERAGE: 38.5%
-CLEAR HEIGHT: 36’
-COLUMN SPACING: 56’ x 60’
-GRADE LEVEL DOORS: 1 - 12’ X 14’
-DOCK DOORS: 19 - 9’ x 10’ W/4 PIT LEVELERS
-SLAB: 7” CONCRETE
-ROOF: METAL W/ R-13 INSULATION
-ELECTRICAL: 400A
-FIRE SUPPRESSION: ESFR
-SKYLIGHTS: 1 PER 2,000 SF
-BUILDING DEPTH: 517’
-AUTO STALLS: ±55
-TRAILER STALLS: ±29
-LIGHTING: LED MOTION SENSOR WAREHOUSE LIGHTS
OFFICE SPEC:
-+SPEC SUITE: ±2,884 SF
-OPEN OFFICE: ±33’ X 41’
-OFFICE: ±16’ X 10’
-BREAK ROOM: ±16’ X 21’
-WORK STATIONS: 11 - ±6’ X 8’
-ALL GENDER RESTROOMS: 3 - ±8’ X 8’
-CLOSET: ±8’ X 6’
Status
Available
Lease Type
Direct
Lease Type
Direct
Lease Rate
Contact Broker For Pricing
Get in touch
Mike Zimmerman, SIOR
Lic: 01514055
Sean Merold, SIOR
Lic: 01803204
Ryan DeAngelis, SIOR
Lic: 01280330
Jimmy Landis
Lic: 02130311