Prologis Industry Park 3 4500 Northeast Interstate 410 Loop
San Antonio, TX 78218
For Lease
77,430 sqft
Lease Price
Contact Broker For Pricing
View Floor Plans
Brochure
Map
Industrial For Lease - Available Immediately
77,430 SF Industrial Warehouse for Lease with Excellent Loop 410 & I-35 Access
Get in touch
Rob Burlingame
Josh Aguilar
Brad O'Neill
FACILITY
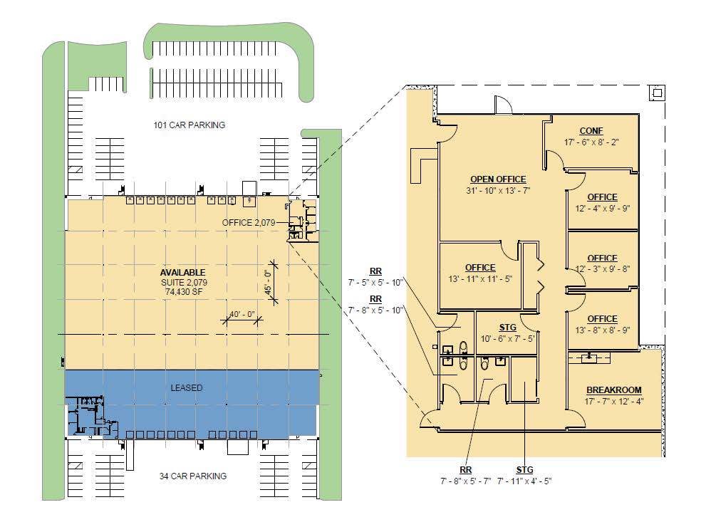
• 77,430 sf available
• 2,079 sf office
• 28’ clear height
• 45’ x 40’ column spacing
• 10 dock high doors
• 1 drive-in doors
• ESFR sprinkler system
• 77,430 sf available
• 2,079 sf office
• 28’ clear height
• 45’ x 40’ column spacing
• 10 dock high doors
• 1 drive-in doors
• ESFR sprinkler system
LOCATION
• Great access to IH-35 and Loop 410 in Northeast San Antonio
• Approximately 9 miles to San Antonio International Airport
• Close access to railroad transport services
• Great access to IH-35 and Loop 410 in Northeast San Antonio
• Approximately 9 miles to San Antonio International Airport
• Close access to railroad transport services
Total Space Available
77,430 sqft
Lease Type
Direct
Lease Rate
Contact Broker For Pricing
Lease Rate Type
Triple Net (NNN)
Get in touch
Rob Burlingame
Josh Aguilar
Brad O'Neill