535 Getty Court
Benicia, CA 94510
For Lease
20,160 sqft
Lease Price
Contact Broker For Pricing
View Floor Plans
Brochure
Map
Industrial For Lease
±28,224 SF
Get in touch
Tony Binswanger
Lic: 01861701
Bo Harkins
Lic: 01943785
Brooks Pedder
Lic: 00902154
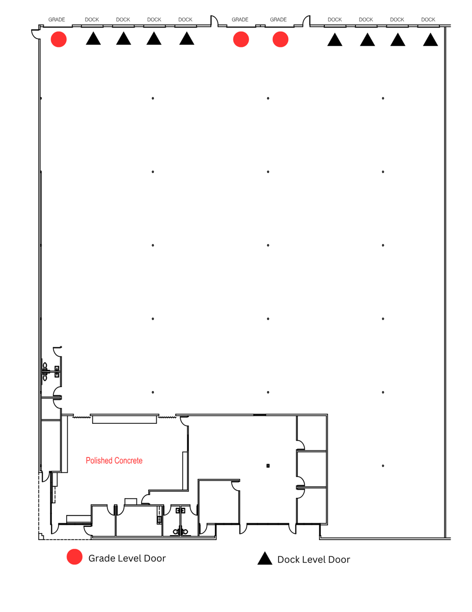
• ±28,224 SF
• Dimensions: ±168’ W x ±168’ D
Office Features
• ±4,200 SF
• Reception
• Breakroom
• Four (4) Restrooms total (Two serving office,
Two serving warehouse)
• Multiple Private Offices
• Bullpen Area
Warehouse Features
• ±24,024 SF
• Loading: Eight (8) Dock-high doors (9' x 10')
• Three (3) grade-level doors (12’x14’)
• Clear Height: ±24’ min
• Column Spacing: ±24’ x ±48’
• Sprinklered: .495/2,000 gpm
• Power: ±400 amps@277/480 (to be verified)
• Concrete tilt-up construction
• Insulated Warehouse
• LED lighting throughout
• Dimensions: ±168’ W x ±168’ D
Office Features
• ±4,200 SF
• Reception
• Breakroom
• Four (4) Restrooms total (Two serving office,
Two serving warehouse)
• Multiple Private Offices
• Bullpen Area
Warehouse Features
• ±24,024 SF
• Loading: Eight (8) Dock-high doors (9' x 10')
• Three (3) grade-level doors (12’x14’)
• Clear Height: ±24’ min
• Column Spacing: ±24’ x ±48’
• Sprinklered: .495/2,000 gpm
• Power: ±400 amps@277/480 (to be verified)
• Concrete tilt-up construction
• Insulated Warehouse
• LED lighting throughout
• ±5,275 SF
• Reception
• Seven (7) Private Offices
• Two (2) Conference Rooms
• Breakroom
• Four (4) Restrooms
• Reception
• Seven (7) Private Offices
• Two (2) Conference Rooms
• Breakroom
• Four (4) Restrooms
Total Space Available
20,160 sqft
Lease Type
Direct
Lease Rate
Contact Broker For Pricing
Get in touch
Tony Binswanger
Lic: 01861701
Bo Harkins
Lic: 01943785
Brooks Pedder
Lic: 00902154