Berkshire Distribution Center 800-1000 Berkshire Lane North
Plymouth, MN 55441
For Lease
16,072 sqft
Lease Price
Contact Broker For Pricing
Brochure
Map
Industrial For Lease
For Lease - Available March 1st, 2025
Get in touch
John Ryden
JR
Matt Oelschlager
MO
Mike Bowen
Maxx Schindel
PROPERTY FEATURES
• Front loaded bulk distribution warehouse
• Union Pacific Rail (usability TBD)
• Close access to I-494 & Hwy 55
• Close proximity to an abundance of restaurant, retail and lodging amenities
• I-2 Industrial zoning
• Front loaded bulk distribution warehouse
• Union Pacific Rail (usability TBD)
• Close access to I-494 & Hwy 55
• Close proximity to an abundance of restaurant, retail and lodging amenities
• I-2 Industrial zoning
Minimum Space Available
16,072 sqft
800B
16,072 sqft
Status
Available
Lease Type
Direct
16,072 SF Warehouse
Office BTS
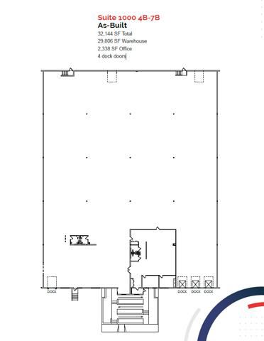
1000 4B-7B
32,144 sqft
Status
Available
Lease Type
Direct
32,144 SF Total
29,806 SF Warehouse
2,338 SF Office
4 dock doors
Lease Type
Direct
Lease Rate
Contact Broker For Pricing
Get in touch
John Ryden
JR
Matt Oelschlager
MO
Mike Bowen
Maxx Schindel