Fullerton Building 8635 West 21st Street

Sand Springs, OK 74063

For Lease

23,998 sqft

Lease Price

$5.95/sqft/yr
View Floor Plans
Brochure
Map
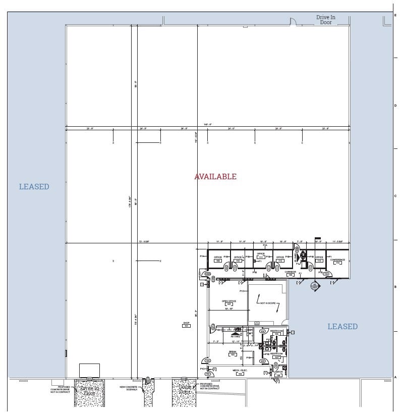
Industrial For Lease - Available November 2024
23,998± SF Available
- 21,600± SF Shop
- 2,398± SF Office
Zoned IM (Moderate Industrial)
16'+ Clear Height
(1) 12' x 16' Overhead Door
(1) 12' x 14' Overhead Door
(1) Dock High Door
New LED Lighting in Shop
Fully Remodeled Office
Warehouse/Shop has Gas Heat; Office is Fully Climate Controlled
Planned Power: 600 AMPS, 408V, 3 Phase
Get in touch
Dwayne Flynn
Dwayne Flynn
Ryan Shaffer
Ryan Shaffer

Minimum Space Available

23,998 sqft

Total Space Available

23,998 sqft

Lease Type

Direct

Lease Rate

$5.95/sqft/yr

Lease Rate Type

Triple Net (NNN)
Floor Plan
Get in touch
Dwayne Flynn
Dwayne Flynn
Ryan Shaffer
Ryan Shaffer