48507 Milmont Drive

Fremont, CA 94538

For Lease

18,075 sqft

Lease Price

Contact Broker For Pricing
View Floor Plans
Interactive Video
Brochure
Map
Industrial For Lease - Available February 2025
Rent Reduced! Move In Ready!
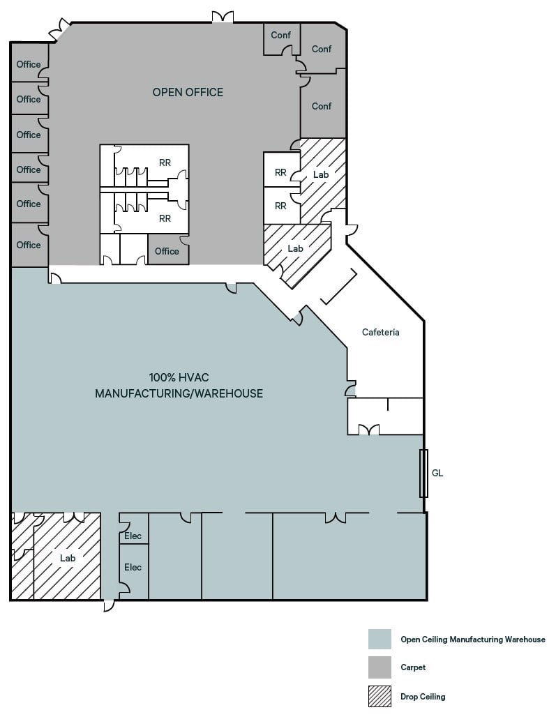
±18,075 SF Manufacturing/R&D Space
Open Ceiling Manufacturing/Warehouse
Open Office with Mix of Private Offices, Conference Rooms, and Open Office Area
1 Grade Level Door
600 Amps, 277/480v Power with Potential Expansion
100% HVAC
Get in touch
Sherman Chan
Lic: 01046769
Sherman Chan
Vince Machado
Lic: 01317553
Vince Machado
New Market Ready Upgraded Improvements
±1.2 Miles to I-880 and ±1.3 Miles to I-680
±3.5 Miles to BART South Fremont Warm Springs Station

Total Space Available

18,075 sqft

Lease Type

Direct

Lease Rate

Contact Broker For Pricing

Lease Rate Type

Triple Net (NNN)
48507 FP
Get in touch
Sherman Chan
Lic: 01046769
Sherman Chan
Vince Machado
Lic: 01317553
Vince Machado