14165 Market Street
Walnut Grove, CA 95690
For Sale
12,600 sqft
Sale Price
$1,250,000
View Floor Plans
Brochure
Map
Industrial For Sale - Available March 2026
Industrial / Commercial / Retail for Sale
Approx. 1,032 SF Office
Approx. 11,568 SF warehouse and approx. 6,775 SF fenced yard
6 - 10' x 12' GL Doors
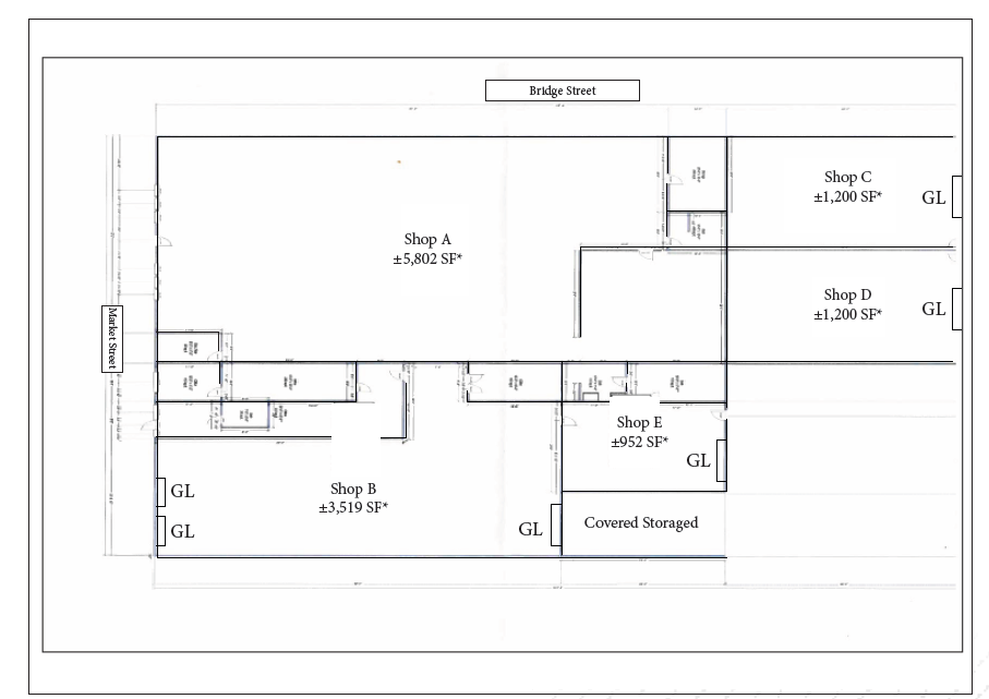
Demised into multiple units
Zoned SPA
400 Amps of Power - buyer to independently verify
Fully renovated in 2023
Get in touch
Tyler Howell
Lic: 02100245
Jeff Kvarme
Lic: 01924968
JK
- BUILDING SIZE ±12,600 SF*
- OFFICE SIZE ±1,032 SF*
- WAREHOUSE SIZE ±11.568 SF*
- FENCED/GATED YARD ±6,775 SF*
- PARCEL SIZE ±0.58 acres*
- GRADE LEVEL DOORS Six (10’x12’)
- CLEAR HEIGHT ±14’
- POWER 400a 3-Phase
- ZONING
- SPA (County of Sacramento)
Permitted Uses: https://landuse.saccounty.gov/
spa/504-020/
- SUBMARKET Walnut Grove
- HIGHWAY ACCESS ±6 miles to I - 5
* Buyer to independently verify
- OFFICE SIZE ±1,032 SF*
- WAREHOUSE SIZE ±11.568 SF*
- FENCED/GATED YARD ±6,775 SF*
- PARCEL SIZE ±0.58 acres*
- GRADE LEVEL DOORS Six (10’x12’)
- CLEAR HEIGHT ±14’
- POWER 400a 3-Phase
- ZONING
- SPA (County of Sacramento)
Permitted Uses: https://landuse.saccounty.gov/
spa/504-020/
- SUBMARKET Walnut Grove
- HIGHWAY ACCESS ±6 miles to I - 5
* Buyer to independently verify
Total Space Available
12,600 sqft
Sale Price
$1,250,000
Get in touch
Tyler Howell
Lic: 02100245
Jeff Kvarme
Lic: 01924968
JK