Pioneers Business Park 6901 Northwest 80th Street
Oklahoma City, OK 73132
For Lease
11,853 sqft
Lease Price
$12/sqft/yr
View Floor Plans
Brochure
Map
Industrial For Lease - Available September 2026
New Industrial Warehouse Coming Soon
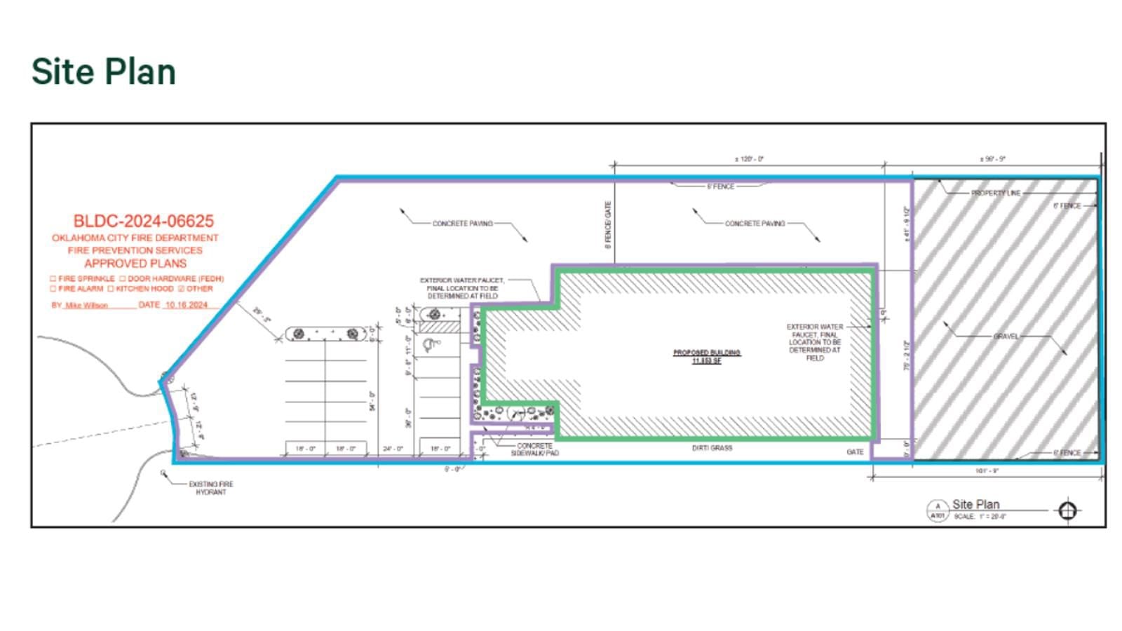
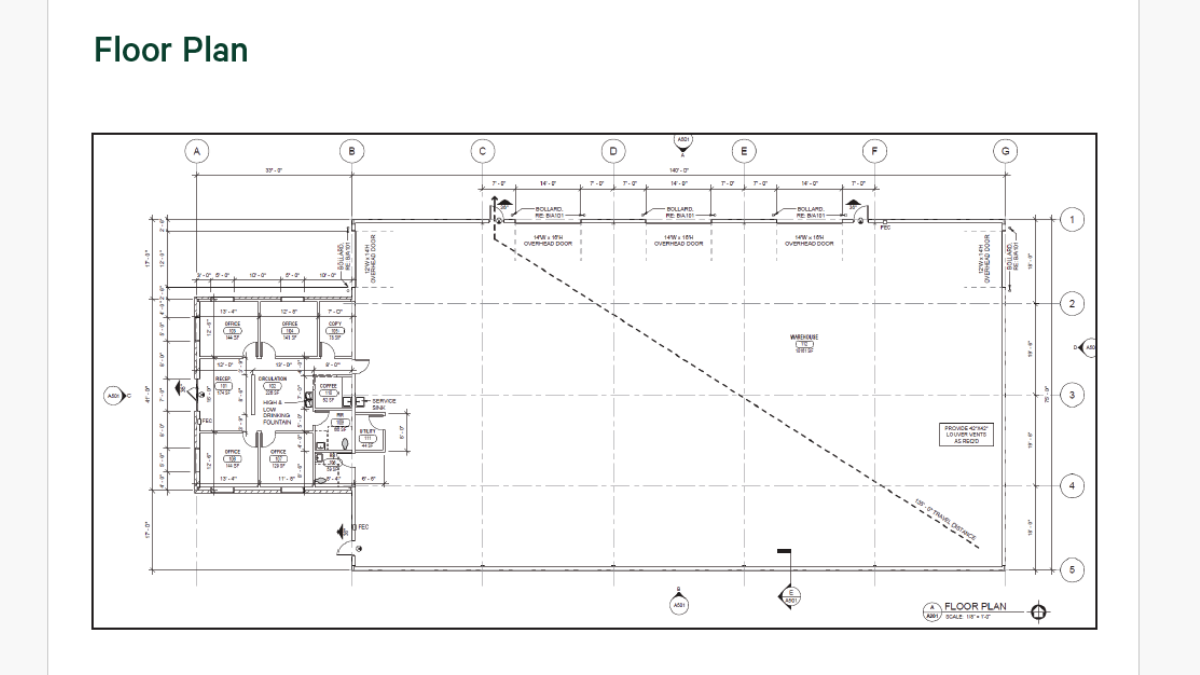
Building Size: 11,853± SF
Office Size: 1,692± SF
Land Size: 1.13± AC
Zoning: I-2 (Moderate Industrial)
Laydown yard with 6” of gravel and a 6’ fence with 3 rows of barbed wire; concrete apron around building and 18 paved parking spots
400-amp, 208v electric service; three phase
Exterior wall pack security lighting
(12) high bay LED lights in warehouse
Clear Height: 18’ - 21’
Grade Doors: (2) 12’x14’, (3) 14’x16’
Clear-span, insulated warehouse has 5” reinforced concrete slab, gas space heating, 7’ liner panel, service sink, drinking fountain and utility closet
Get in touch
Randy Lacey
Chris Zach
Building Size: 11,853± SF
- Office Size: 1,692± SF
Phase 1 expected completion: September 2026
- Office Size: 1,692± SF
Phase 1 expected completion: September 2026
Surrounded by: NW Expressway, Hefner Parkway, 39th Expressway and Kilpatrick
Turnpike
Turnpike
Total Space Available
11,853 sqft
Lease Type
Direct
Lease Rate
$12/sqft/yr
Lease Rate Type
Triple Net (NNN)
Get in touch
Randy Lacey
Chris Zach