Industrial Space for Lease 11321 Alejandro Dumas

Chihuahua, CHIH 31136

For Lease

54,244 sqft

Lease Price

Contact Broker For Pricing
View Floor Plans
Brochure
Map
Industrial For Lease - Available May 2025
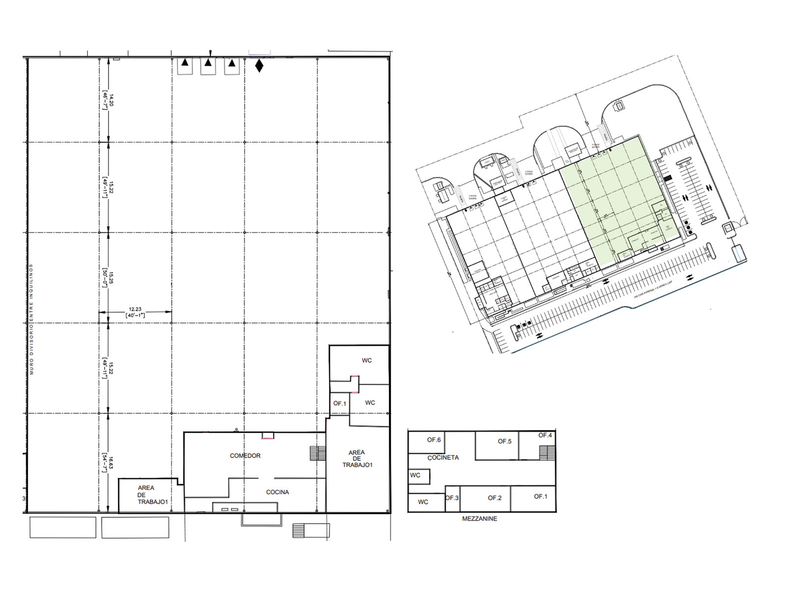
Clear Height: 26'
Bay Spacing: 25' x 54'
Dock Doors: 3
Drive-In Doors: 1
Construction Type: Concrete block
Floor Thickness: 6"
Roof Type: KR-18
Fire Suppression System: ESFR
Substation Capacity: 2,000 KVA's
Office Area: 7,408.25 SF
Mezzanine: 3,390.09 SF
A/C evaporative coolers
Office Lighting: Fluorescent
Warehouse Lighting: LED
24/7 Security
Strategic location for business
Get in touch
Andrés Sandoval
Andrés Sandoval
Located in the Complejo Industrial Chihuahua, approximately 15 miles from the Chihuahua International Airport and approximately 12 miles from the highway.

Minimum Space Available

54,244 sqft

Total Space Available

54,244 sqft
Suite C
54,244 sqft
Industrial

Status

Available

Lease Type

Direct

Lease Type

Direct

Lease Rate

Contact Broker For Pricing

Lease Rate Type

Triple Net (NNN)
CUU00214 CIC (54,244 SF) - Floorplan
Get in touch
Andrés Sandoval
Andrés Sandoval