2702 Directors Row 2702 Directors Row
Orlando, FL 32809
For Lease
178,248 sqft
Lease Price
Contact Broker For Pricing
View Floor Plans
Brochure
Map
Industrial For Lease
187,245 SF FREESTANDING DOCK HIGH WAREHOUSE
Fully Secured Fenced Lot
11.77 AC
Industrial Outdoor Storage
Two Story Office
Get in touch
David Murphy
Monica Wonus
Gaby Gissy
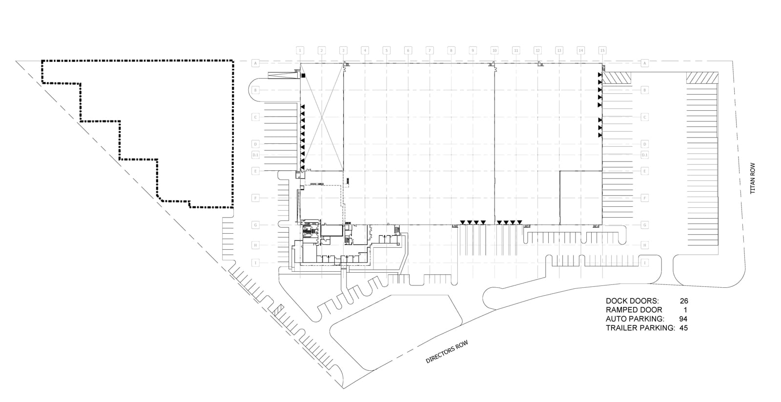
AVAILABLE WITH OUTSIDE STORAGE AND TRAILER PARKING
HIGHLIGHTS
+ 187,245 SF on 11.77 Acre Lot
+ Location: Orlando Central Park
+ Efficient Operations with 26 Total Dock Doors
+ Ample Parking for 237 Cars
+ Excess Land for Outdoor Storage
+ John Young Parkway Direct Access
+ Large Office Buildout +/- 10K SF
HIGHLIGHTS
+ 187,245 SF on 11.77 Acre Lot
+ Location: Orlando Central Park
+ Efficient Operations with 26 Total Dock Doors
+ Ample Parking for 237 Cars
+ Excess Land for Outdoor Storage
+ John Young Parkway Direct Access
+ Large Office Buildout +/- 10K SF
INDUSTRIAL MARKET
Orlando boasts a dynamic economy driven by steady
population growth, a burgeoning tech and fintech sector,
and a strong defense industry, complemented by its
famous theme parks. With a low unemployment rate of
3.4% as of September 2024 and impressive GDP
growth of 5.4% in 2023, the construction sector is
leading the way. The region continues to attract highly
educated workers, contributing to a population increase
of 2.1% in 2023, largely due to net in-migration. This
growth has positioned Orlando as one of the top 10
markets in the nation according to the Emerging Trends
in Real Estate 2025 report.
Orlando boasts a dynamic economy driven by steady
population growth, a burgeoning tech and fintech sector,
and a strong defense industry, complemented by its
famous theme parks. With a low unemployment rate of
3.4% as of September 2024 and impressive GDP
growth of 5.4% in 2023, the construction sector is
leading the way. The region continues to attract highly
educated workers, contributing to a population increase
of 2.1% in 2023, largely due to net in-migration. This
growth has positioned Orlando as one of the top 10
markets in the nation according to the Emerging Trends
in Real Estate 2025 report.
Minimum Space Available
178,248 sqft
Total Space Available
178,248 sqft
Lease Type
Direct
Lease Rate
Contact Broker For Pricing
Lease Rate Type
Triple Net (NNN)
Get in touch
David Murphy
Monica Wonus
Gaby Gissy