1601 Fairfax Trafficway 1601 Fairfax Trafficway

Kansas City, KS 66115

Lease Price

Contact Broker For Pricing
View Floor Plans
Dry Space Floor Plan
Freezer Space Floor Plan
Brochure
Map
Industrial For Lease - Available June 2025
Freezer and Dry Space Available
Get in touch
Ben Whetstone
Ben Whetstone
Austin Baier
Austin Baier
Mike Mitchelson, SIOR, CCIM
Mike  Mitchelson, SIOR, CCIM
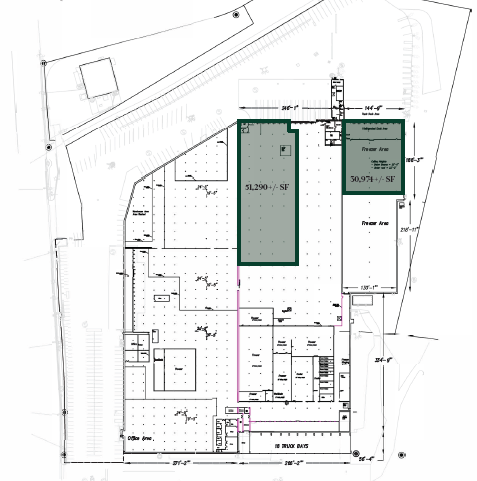
Freezer/Cooler Space
30,974 sqft
Industrial
Lease
$10/sqft

Status

Available

Lease Type

Direct

-26 Degree Freezer and 34-40 Degree Cooler Refrigerated Dock Area, with 10 dock doors 40' Clear Height 15+/- Trailer parking spots with reefer plug-ins Fenced Yard Total Nets: $1.57 PSF 3PL services/pallet storage available through ILG
Floorplan

View Floor Plans

Dry Space
51,290 sqft
Industrial
Lease
$4.25/sqft

Status

Available

Lease Type

Direct

8 Dock High Doors 18' Clear Height Minimal Office Trailer Parking Fenced Yard Total Nets: $1.57 PSF
Floorplan

View Floor Plans

Lease Type

Direct

Lease Rate

Contact Broker For Pricing

Lease Rate Type

Triple Net (NNN)
Dry Space Floor Plan
Freezer Space Floor Plan
Get in touch
Ben Whetstone
Ben Whetstone
Austin Baier
Austin Baier
Mike Mitchelson, SIOR, CCIM
Mike  Mitchelson, SIOR, CCIM