Industrial/Flex Building - Owner-User Opportunity 5825 F Street
Omaha, NE 68117
For Sale
9,600 sqft
Sale Price
$2,000,000
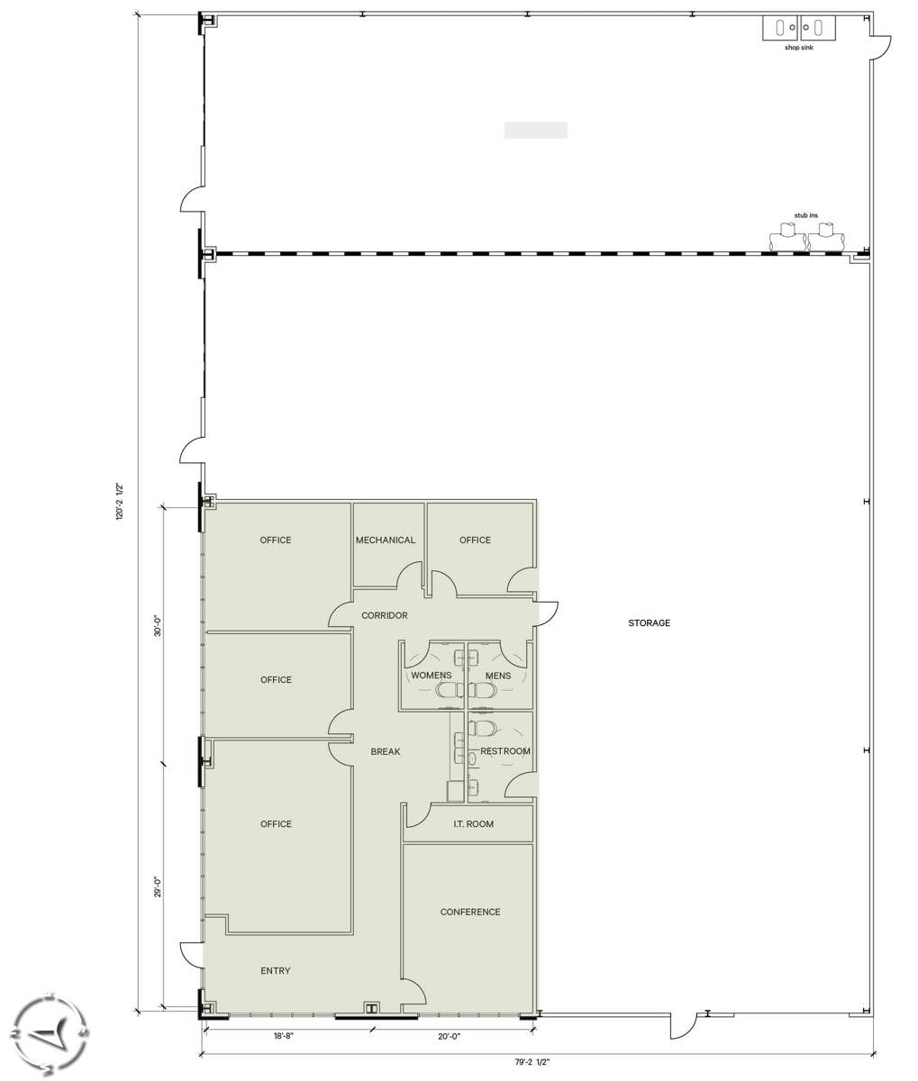
View Floor Plans
Brochure
Map
Industrial For Sale - Available Immediately
9,600 SF Flex Building
2,400 SF office space
Large lot / expansion option
F Street frontage
Three 14’ x 12’ garage doors
Approximately one mile to I-80 interchange at 60th Street
Outdoor storage available
17’ clear height
Get in touch
Graham Nabity
Brad Schaefer
Building Size 9,600 SF
Sprinklered No
Year Built / Stories 2017 / One
Power 208/120 V 3-Phase / (2) 250 Amp panels
Land Size 2.066 AC / 90,000 SF
Concrete 6” thick
Roof Standing seam / metal
Heat Radiant / Forced
Drive-in Doors Three - 14’ X 12’
Clear Height 17’ minimum
Exhaust Fan General exhaust ventilation
Security SEI alarms / cameras
Sprinklered No
Year Built / Stories 2017 / One
Power 208/120 V 3-Phase / (2) 250 Amp panels
Land Size 2.066 AC / 90,000 SF
Concrete 6” thick
Roof Standing seam / metal
Heat Radiant / Forced
Drive-in Doors Three - 14’ X 12’
Clear Height 17’ minimum
Exhaust Fan General exhaust ventilation
Security SEI alarms / cameras
Zoning General Industrial (GI)
R.E. Taxes $16,875.46 (2024)
R.E. Taxes $16,875.46 (2024)
Total Space Available
9,600 sqft
Sale Price
$2,000,000
Get in touch
Graham Nabity
Brad Schaefer