300 Columbus Circle

Edison, NJ 08837

For Lease

27,809 sqft

Lease Price

Contact Broker For Pricing
View Floor Plans
Brochure
Map
Industrial For Lease
+/-27,809 SF | For Sublease | Central New Jersey
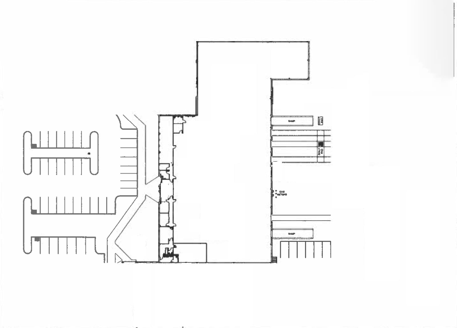
±27,809 SF Available
±3,397 SF Office
±24,412 SF Warehouse
20' Ceiling Height
Wet Sprinkler System
4 Loading Docks
2 Drive-in Doors
Ample Power
52 Car Parking
Trailer Parking
Get in touch
Scott Belfer
Scott Belfer
EJ DaCosta
EJ DaCosta
Evan Filion
Evan Filion
Centrally located warehouse and distribution space offering ±27,809 sq. ft. for sublease with±3,397 sq. ft. office, ±24,412 sq. ft. warehouse, 4 loading docks, 2 drive-in doors, car and trailer parking.
Toll free access to Port Newark/ Elizabeth. Local and regional access via the New Jersey Turnpike, Routes 1, 9, 440, and I-287 to the Port, NYC, Staten Island, the Outer Boroughs and Newark Liberty International airport

Minimum Space Available

27,809 sqft

Total Space Available

27,809 sqft

Lease Type

SubLease

Lease Rate

Contact Broker For Pricing

Lease Rate Type

Triple Net (NNN)
300 Columbus Floorplan clean
Get in touch
Scott Belfer
Scott Belfer
EJ DaCosta
EJ DaCosta
Evan Filion
Evan Filion