Tri County Business Park, Bldg 3 6696 Tri County Parkway

Schertz, TX 78154

For Lease

7,252 sqft

Lease Price

Contact Broker For Pricing
View Floor Plans
Tri County Business Park Site Plan
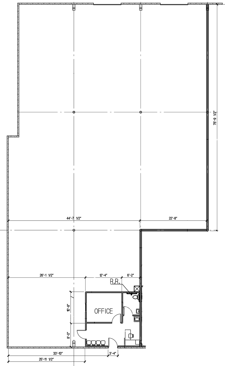
Space Plan - Suite 150
Brochure
Map
Industrial For Lease - Available February 2026
7,252 SF Class A Flex Industrial Space Available
Get in touch
Rob Burlingame
Rob Burlingame
Josh Aguilar
Josh  Aguilar
Brad O'Neill
Brad O'Neill
- Class A Construction
- ±345 SF Office Space
- 20’ Clear height
- ESFR Fire Protection
- 2 Dock High Doors
- End cap space
Located in the Northeast Submarket within Tri County Business Park. Easy access to I-35 via FM 3009. Premium frontage and visibility on FM 3009.

Total Space Available

7,252 sqft

Lease Type

Direct

Lease Rate

Contact Broker For Pricing
Tri County Business Park Site Plan
Space Plan - Suite 150
Get in touch
Rob Burlingame
Rob Burlingame
Josh Aguilar
Josh  Aguilar
Brad O'Neill
Brad O'Neill