101 Evans Avenue
Dayton, NV 89403
For Sale/Lease
144,761 sqft
Sale Price
Contact Broker For Pricing
Lease Price
Contact Broker For Pricing
View Floor Plans
Brochure
Map
Industrial For Sale/Lease
Available For Sale or Lease ±144,761 SF
Get in touch
Eric Bennett
Lic: S.0046241
Tomi Jo Lynch
Lic: BS.0144992
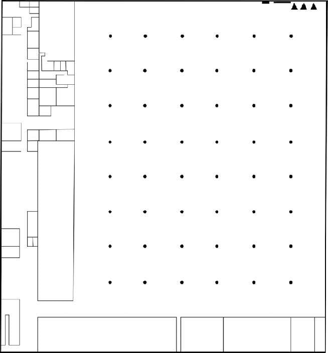
±144,761 SF Available on ±11.73 AC
±25,600 SF Office Area
24-26’ Clear Height
3 Dock Doors
40’x40’ Column Spacing
±271 Parking Spaces
±25,600 SF Office Area
24-26’ Clear Height
3 Dock Doors
40’x40’ Column Spacing
±271 Parking Spaces
Total Space Available
144,761 sqft
Lease Type
Direct
Sale Price
Contact Broker For Pricing
Lease Rate
Contact Broker For Pricing
Get in touch
Eric Bennett
Lic: S.0046241
Tomi Jo Lynch
Lic: BS.0144992