Spanish Springs Corporate Park Phase III, Bldg. 3 30 Isidor Court, Suite 200
Sparks, NV 89441
For Lease
42,000 sqft
Lease Price
Contact Broker For Pricing
View Floor Plans
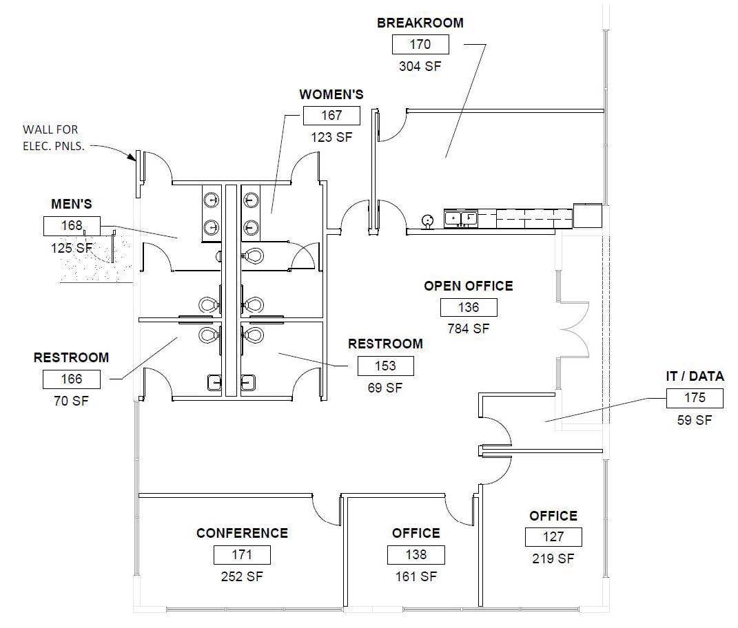
30 Isidor Court, Ste. 200_Site Floorplan
30_Isidor_Court, Ste. 200_Spec. Office Floorplan
Brochure
Map
Industrial For Lease
±42,000 SF Remaining for Lease
Get in touch
Eric Bennett
Lic: S.0046241
+ ±42,000 SF Available
+ ±2,368 SF Spec office
+ 8 Dock high doors with 35k lb levelers
+ 1 Grade level doors
+ 32’ Clear height
+ ESFR Sprinklers
+ 1,000 Amps 277/480V Power
+ 30 FC lighting through out warehouse
+ 3 Battery chargers provided with epoxy flooring
+ ±40 Parking spaces
+ ±2,368 SF Spec office
+ 8 Dock high doors with 35k lb levelers
+ 1 Grade level doors
+ 32’ Clear height
+ ESFR Sprinklers
+ 1,000 Amps 277/480V Power
+ 30 FC lighting through out warehouse
+ 3 Battery chargers provided with epoxy flooring
+ ±40 Parking spaces
Total Space Available
42,000 sqft
Lease Type
Direct
Lease Rate
Contact Broker For Pricing
Get in touch
Eric Bennett
Lic: S.0046241