Hermosillo Norte Industrial Park 1 Boulevard Parque Industrial Hermosillo Norte

Parque Industrial De Hermosillo Norte, SON 83318

For Lease

499,361 sqft

Lease Price

Contact Broker For Pricing
View Floor Plans
Brochure
Map
Industrial For Lease - Available December 2025
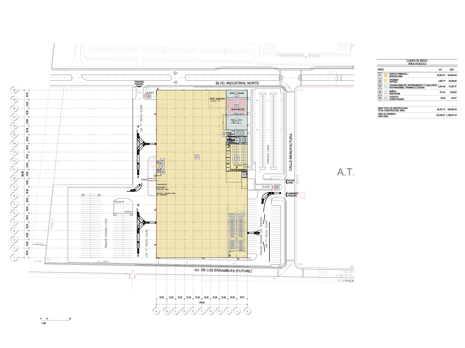
±499,361 SF / 47,604 M2 | State of the Art Manufacturing Facility | For Sublease
Site Area: ±1,114,567 SF (±25.58 Ac) / ±103,547 m2
Industrial Area: ±432,560 SF / 40,186 m2
Office Area: ±37,253 SF / 3,461 m2
Loading Docks: 51, 9’ x 10’ | Grade Level: 1- 12’ x 14’
Dock Equipment: Levelers (30,000 lb. cap), seals and lights (flexible arm)
Located in one of the newest industrial clusters in the city.
Close proximity to one of the fastest growing residential developments.
Short distance to international Highway 15, providing connectivity to major transportation routes and the US-Mexico port of entry. areas providing a large labor pool.
Construction completed in 2022.
Highly functional and flexible Building.
Large lot provides significant surplus land for truck staging or storage.
Get in touch
John Slattery
John Slattery

Total Space Available

499,361 sqft

Lease Type

SubLease

Lease Rate

Contact Broker For Pricing
Hermosillo Norte_floor plan
Get in touch
John Slattery
John Slattery