Zelig Industrial Park - Pepper Palace Warehouse Bldg 5 3275 Newport Highway

Sevierville, TN 37876

For Sale

14,800 sqft

Sale Price

$1,995,000
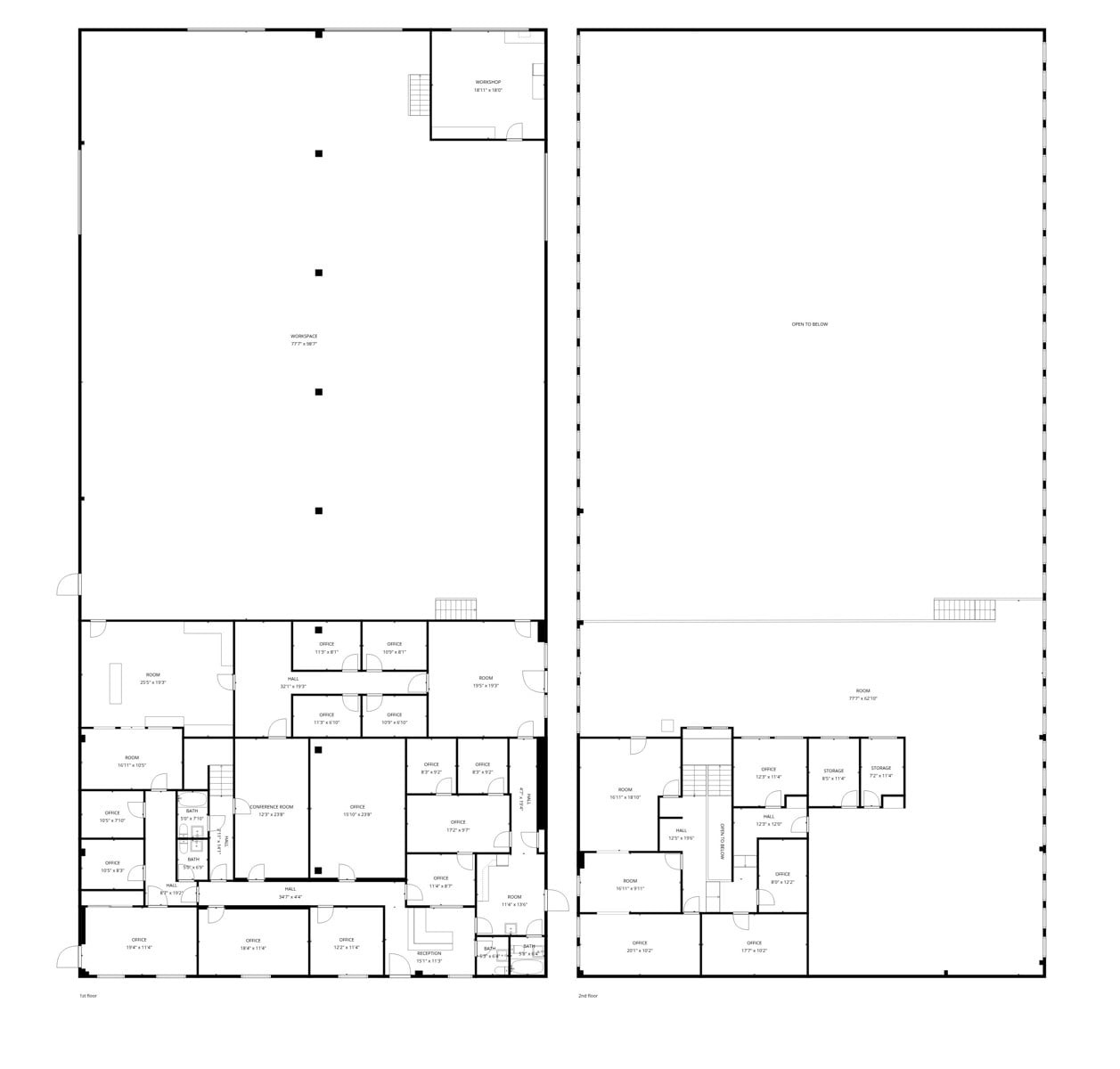
View Floor Plans
Brochure
Map
Industrial For Sale - Available March 2026
14,800 SF Industrial for Sale in Sevierville, TN
14,800 Total SF | 6,400 SF Office
19' Clear Ceiling Height
5 Drive-in Doors
40' x 20' Column Spacing
Get in touch
Brian Tapp, SIOR, CCIM
Brian Tapp, SIOR, CCIM
Andrew Wilmoth, SIOR, CCIM
Andrew Wilmoth, SIOR, CCIM
Situated along Newport Highway, between Sevierville and Newport, this 14,800 SF industrial facility delivers a balanced combination of warehouse efficiency and office flexibility. The building includes 8,400 SF of warehouse space with 19'–22'10" ceiling heights, five drive-in doors, and 600-amp, 3-phase power. The 6,400 SF of two-story office space accommodates administrative, sales, or training functions with ease. Positioned on 0.8 acres and zoned I-1, the property offers strong appeal for owner-occupiers seeking quality space within Sevier County’s tight industrial market.

Total Space Available

14,800 sqft

Sale Price

$1,995,000
Highway
I-40
10 miles
15 min. /drive
Hwy 411
Airport
McGhee Tyson Airport
41 miles
60 min. /drive
Gatlinburg/Pigeon Forge Airport (GKT)
8.4 miles
13 min. /drive
1 Mile 5 Miles 10 Miles
Population 606 11,723 62,426
Avg. Household Income $85,516 $76,390 $79,897
3275 Newport Hwy Suite 5
Get in touch
Brian Tapp, SIOR, CCIM
Brian Tapp, SIOR, CCIM
Andrew Wilmoth, SIOR, CCIM
Andrew Wilmoth, SIOR, CCIM