3660 S School Ave 3660 South School Avenue

Fayetteville, AR 72701

For Lease

30,000 sqft

Lease Price

$6.50/sqft/yr
View Floor Plans
Brochure
Map
Industrial For Lease - Available Immediately
Warehouse Space for Sublease
Price $6.50/SF (NNN)
Size: ±30,000 SF
Sublease Expiration: December 31, 2028
Drive-In Doors: 1
Loading Docks: 2
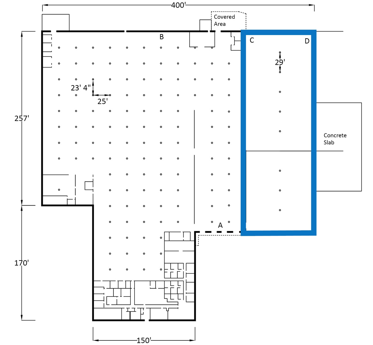
Ceiling Height: 20’ Side Walls
Column Spacing: 30’ x 30’
Power: 3 Phase 1200 Amp 480, 400 Amp 208, and 2000 Amp 120/240
Sprinkler: Wet
Get in touch
Alex Schemel
Alex Schemel
David Erstine
David Erstine
This industrial property offers a substantial ±30,000 square feet of versatile warehouse space, featuring impressive 20-foot sidewalls for ample vertical storage. The facility is equipped with one convenient drive-in door and two loading docks, facilitating smooth logistics and distribution. Robust infrastructure includes 3 Phase 1200 Amp 480 power and a wet sprinkler system, ensuring operational efficiency and safety. With a strategic column spacing of 30' x 30', the layout provides flexibility for diverse industrial requirements.
Strategically located at 3660 S School Ave in Fayetteville, AR, this property offers prime accessibility within a thriving industrial corridor. Its proximity to I-49 ensures excellent connectivity for regional and national distribution. Situated within a 15-minute drive time of key regional hubs like Springdale and major employers such as Tyson Foods and J.B. Hunt, it benefits from a strong labor market and robust economic activity. This location is ideal for businesses seeking efficient logistics and a strong presence in Northwest Arkansas.

Minimum Space Available

30,000 sqft

Total Space Available

30,000 sqft

Lease Type

SubLease

Lease Rate

$6.50/sqft/yr

Lease Rate Type

Triple Net (NNN)
Floor Plan
Get in touch
Alex Schemel
Alex Schemel
David Erstine
David Erstine