725 Industrial Ave. 725 Industrial Avenue

Tulare, CA 93274

For Sale/Lease

11,296 sqft

Sale Price

Contact Broker For Pricing

Lease Price

Contact Broker For Pricing
View Floor Plans
Site Plan
Floor Plan
Brochure
Map
Industrial For Sale/Lease - Available Immediately
Brand New ±11,296 SF Metal Construction, Service and Storage Building for Sale or Lease in Tulare, CA
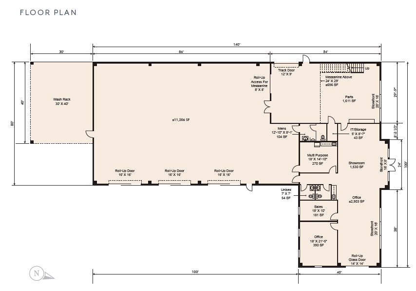
11,296 SF on Approximately 3.5 Acres
Brand New Never Occupied
2,903 SF Office
3 Restrooms
3 - 16’x16’ Oversized Drive-In Doors
1 - 12’x9’ Ground Level Door
1 - 14’x14’ Glass Showroom Roll-Up Door
Covered Wash Rack with Drains
2 Acres for Outside Storage or Future Building Expansion
White Scrim Foil Insulation
.02 / 1500 Sprinkler System
400 Amps 3 Phase Power
Structure to Support Bridge Crane
Get in touch
Jeff Linden
Lic: 01707252
Jeff Linden
Robert Taylor
Lic: 00937509
Robert Taylor
Brand New ±11,296 SF Metal Construction, Service and Storage Building

Total Space Available

11,296 sqft

Lease Type

Direct

Sale Price

Contact Broker For Pricing

Lease Rate

Contact Broker For Pricing
Site Plan
Floor Plan
Get in touch
Jeff Linden
Lic: 01707252
Jeff Linden
Robert Taylor
Lic: 00937509
Robert Taylor