Robinson Industrial Park 10285 E 75th Street North

Owasso, OK 74055

For Lease

3,125 - 9,375 sqft

Lease Price

$10.50/sqft/yr
View Floor Plans
Brochure
Map
Industrial For Lease - Available March 2026
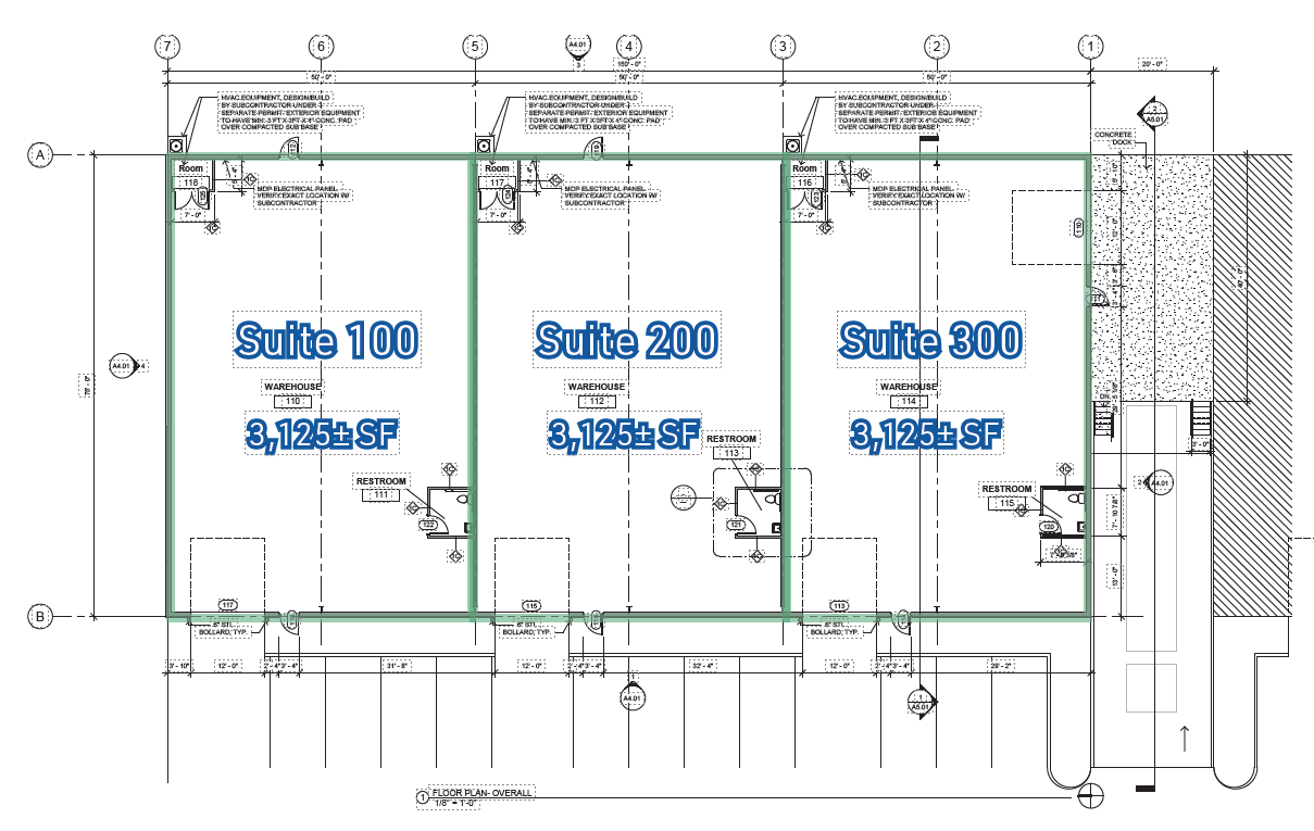
3,125± SF Suite(s) | For Lease | Robinson Industrial Park
New Construction in a Class A Industrial Park estimated completion Q2 - Q3 2026
(3) 3,125± SF Suites
9,375± SF Building Total
19’ Eave Height
16’ Clear Height
(1) 12’ x 14’ Dock High Door
(2) 12’ x 14’ Overhead Doors
3 PH 200 amp 120/208 V
Radiant Tube Heaters
LED Lights
Zoned IL
Close to Downtown Owasso
Convenient Access to Highways 169 & 75
Get in touch
David Glasgow
David Glasgow
Alex Powell
Alex Powell
Kurt Giller
Kurt Giller
10285 E 75th Street North is a newly constructed Class A industrial building in Robinson Industrial Park in Owasso, Oklahoma. The ±9,375 SF facility is divisible into three ±3,125 SF suites and features 16’ clear height, dock-high and overhead doors, radiant tube heating, LED lighting, and 3-phase power. The property is zoned IL and offers convenient access to Highways 169 and 75, with close proximity to downtown Owasso.

Minimum Space Available

3,125 sqft

Total Space Available

9,375 sqft
Suite 100
3,125 sqft
Industrial
Lease
$10.50/sqft/yr

Status

Available

Lease Type

Direct

Floorplan

View Floor Plans

Suite 200
3,125 sqft
Industrial
Lease
$10.50/sqft/yr

Status

Available

Lease Type

Direct

Floorplan

View Floor Plans

Suite 300
3,125 sqft
Industrial
Lease
$10.50/sqft/yr

Status

Available

Lease Type

Direct

Floorplan

View Floor Plans

Lease Type

Direct

Lease Rate

$10.50/sqft/yr

Lease Rate Type

Triple Net (NNN)
Multi Ten FP  w-suites
Get in touch
David Glasgow
David Glasgow
Alex Powell
Alex Powell
Kurt Giller
Kurt Giller