Northwest Corporate Center 1790 Commerce Park Drive

El Paso, TX 79912

For Lease

31,731 sqft

Lease Price

Contact Broker For Pricing
View Floor Plans
Brochure
Map
Industrial For Lease - Available Immediately
Warehouse/Distribution Space
Clear Height: 24’
Column Spacing: 40’ x 50’
Get in touch
Christian Perez Giese
Christian Perez Giese

Total Space Available

31,731 sqft
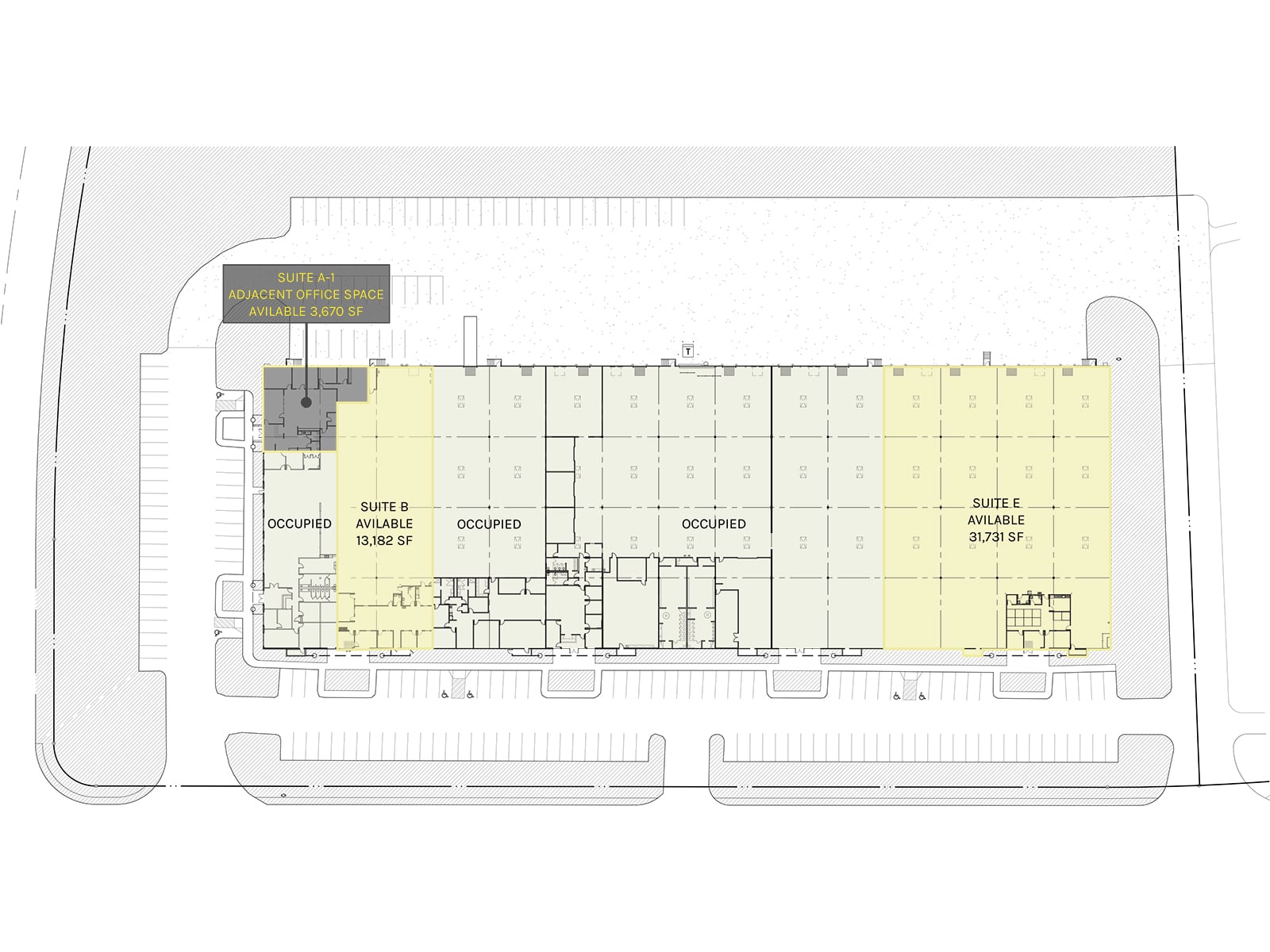
Suite B
13,182 sqft
Industrial

Status

Available

Lease Type

Direct

• Available: Immediately • Available Area: 13,182 SF (3,670 SF of adjacent office area available) • Clear Height: 24' • Docks: 2 doors
Floorplan

View Floor Plans

Suite E
31,731 sqft
Industrial

Status

Available

Lease Type

Direct

• Available: January 1, 2026 • Available Area: 31,731 SF • Clear Height: 24' • Docks: 4 doors, 1 drive-in ramp

Lease Type

Direct

Lease Rate

Contact Broker For Pricing

Lease Rate Type

Triple Net (NNN)
1790 Commerce Park - Site Plan (Available Area Marked - Suite B & E)
Get in touch
Christian Perez Giese
Christian Perez Giese