Central El Paso Submarket 7157 Merchant Avenue

El Paso, TX 79915

For Lease

21,809 sqft

Lease Price

Contact Broker For Pricing
View Floor Plans
Brochure
Map
Industrial For Lease - Available January 2025
21,809 SF - Immediate Availability
21,809 SF Available (1,809 SF of Office & 20,000 SF of Warehouse)
Available Now
Front Load Warehouse
27' Clear Height
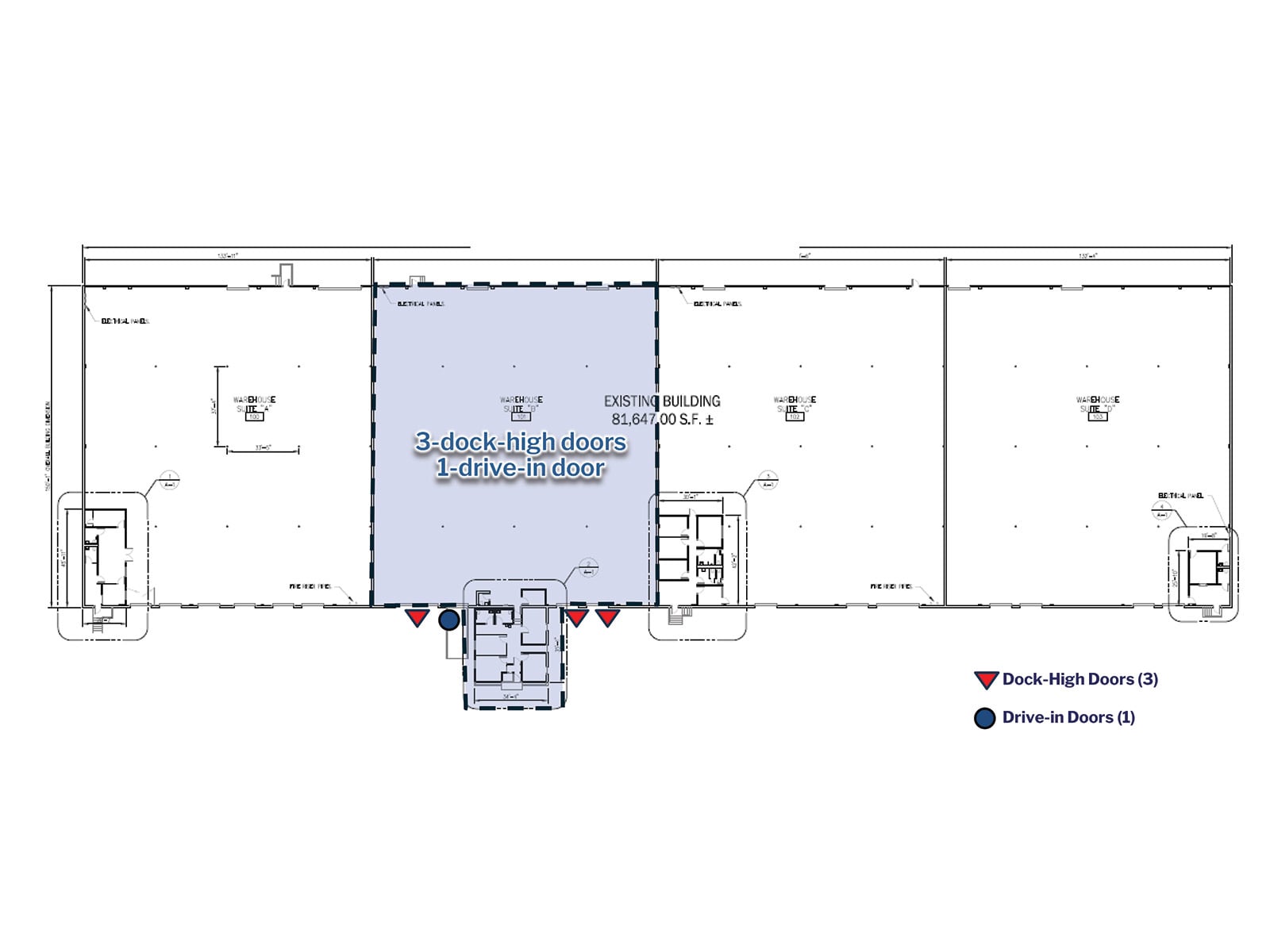
3 Dock High Doors
1 Drive-In Door
Wet Sprinklers
200amps - 480/277V 3-Phase Power
T-12 Lighting
Fenced and Secured Truck Court
113' Truck Court Depth
33' x 27', Column Spacing
150' Building Depth
2015 TPO Roof
Get in touch
Arturo De la Mora
Arturo De la Mora
William Caparis
William Caparis

Minimum Space Available

21,809 sqft

Total Space Available

21,809 sqft
Suite 101
21,809 sqft
Industrial

Status

Available

Lease Type

Direct

Lease Type

Direct

Lease Rate

Contact Broker For Pricing

Lease Rate Type

Triple Net (NNN)
7157 Merchant Avenue
Get in touch
Arturo De la Mora
Arturo De la Mora
William Caparis
William Caparis