4352-B South 91st East Avenue

Tulsa, OK 74145

For Lease

22,050 sqft

Lease Price

$5.50/sqft/yr
View Floor Plans
Brochure
Map
Industrial For Lease - Available Immediately
Climate Controlled Warehouse/Distribution Space
22,050± SF Available*
Small Shipping Office to be Constructed if needed
100% Climate Controlled
Tilt-Up Construction with Aggregate Facing
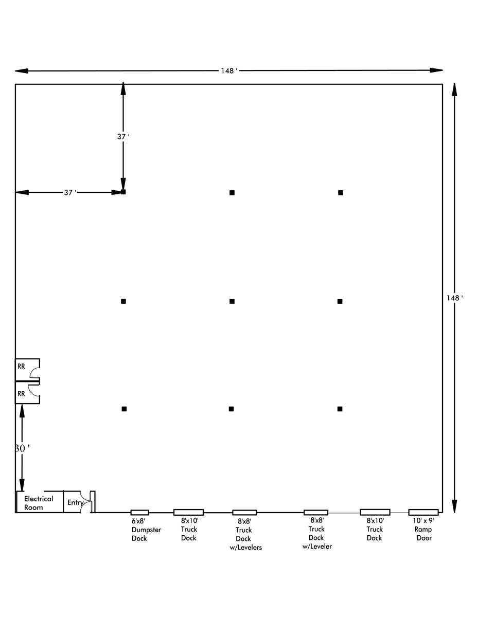
37’ x 37’ Column Spacing
17’ 10” Under Joist
Loading Doors: (2) 8’ x 10’ Dock Doors, (2) 8’ x 8’ Dock Doors w/Levelers, (1) 10’ x 9’ Ramp Door, (1) 6’ x 8’ Dumpster Dock
100’ Truck Court
*Source: Assessor and Owner
Get in touch
Jamie Hill
Jamie Hill
Spencer Sheets
Spencer Sheets

Minimum Space Available

22,050 sqft

Total Space Available

22,050 sqft

Lease Type

Direct

Lease Rate

$5.50/sqft/yr

Lease Rate Type

Triple Net (NNN)
FP 4352-B S 91st East Ave
Get in touch
Jamie Hill
Jamie Hill
Spencer Sheets
Spencer Sheets