Harlingen Business Park - Suites B & C 401 N. T Street

Harlingen, TX 78550

For Lease

10,800 sqft

Lease Price

Contact Broker For Pricing
View Floor Plans
Brochure
Video
Map
Industrial For Lease - Available Immediately
New Ownership
New Exterior Paint
Fresh Asphalt / Concrete Truck Court Paving
Access through N. T Street & Northbound U.S. 77 Frontage Rd.
Get in touch
Carlos Telles
Carlos Telles
Ernest Garza
Ernest Garza
Harlingen Business Park consists of 4 industrial buildings comprised of warehouse and flex space with offices. With direct access to I-69E frontage road, this development is ideal for operations like regional/national distributors and last-mile logistics looking to improve the processing and housing of their inventory.
Located at the heart of the I-69E and I-2 interchange. This location provides two separate access points through North T Street and Interstate 69E frontage road, tenants are also able to maintain walk-in traffic.

Total Space Available

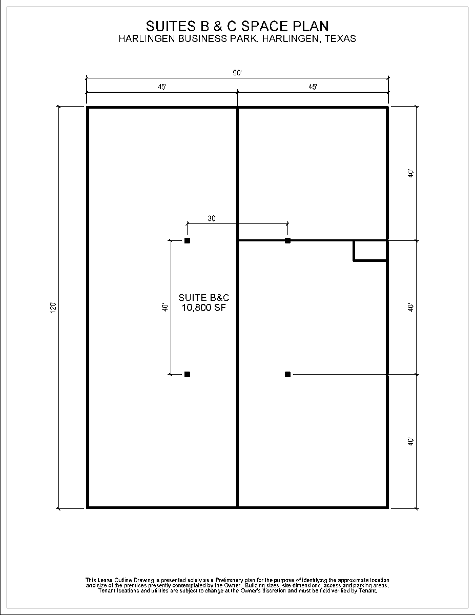
10,800 sqft
Suite B & C
Industrial

Status

Available

Lease Type

Direct

+ 5
+ Building Size: 35,900 sq. ft. + Available Space: 10,800 sq. ft. + Office Area: 1,680 sq. ft. + Dock Doors: 1 dock high; One semi dock + Clear Height: 15’ - 18’ + Space Dimensions: 90’ x 120’ + Fire Protection: Extinguishers + Roof: Thermoplastic Polyolefin (TPO) + Warehouse Lighting: Metal Halide + Automobile Parking: 4 auto spaces

Lease Type

Direct

Lease Rate

Contact Broker For Pricing

Lease Rate Type

Triple Net (NNN)
HARLINGEN SUITE B and C_Space Plan
Get in touch
Carlos Telles
Carlos Telles
Ernest Garza
Ernest Garza