21 Nursery Lane
Rye, NY 10580
For Sale
40,960 sqft
Sale Price
Contact Broker For Pricing
View Floor Plans
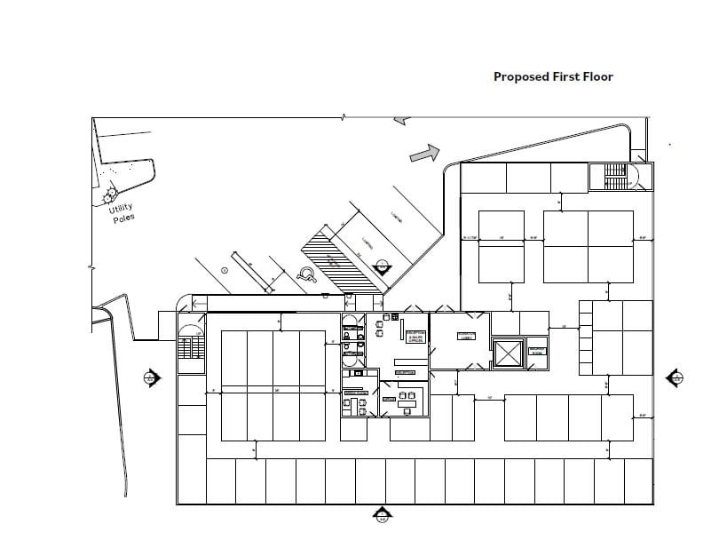
Proposed 1st Floor
Proposed 2nd and 3rd Floors
Existing Site Plan
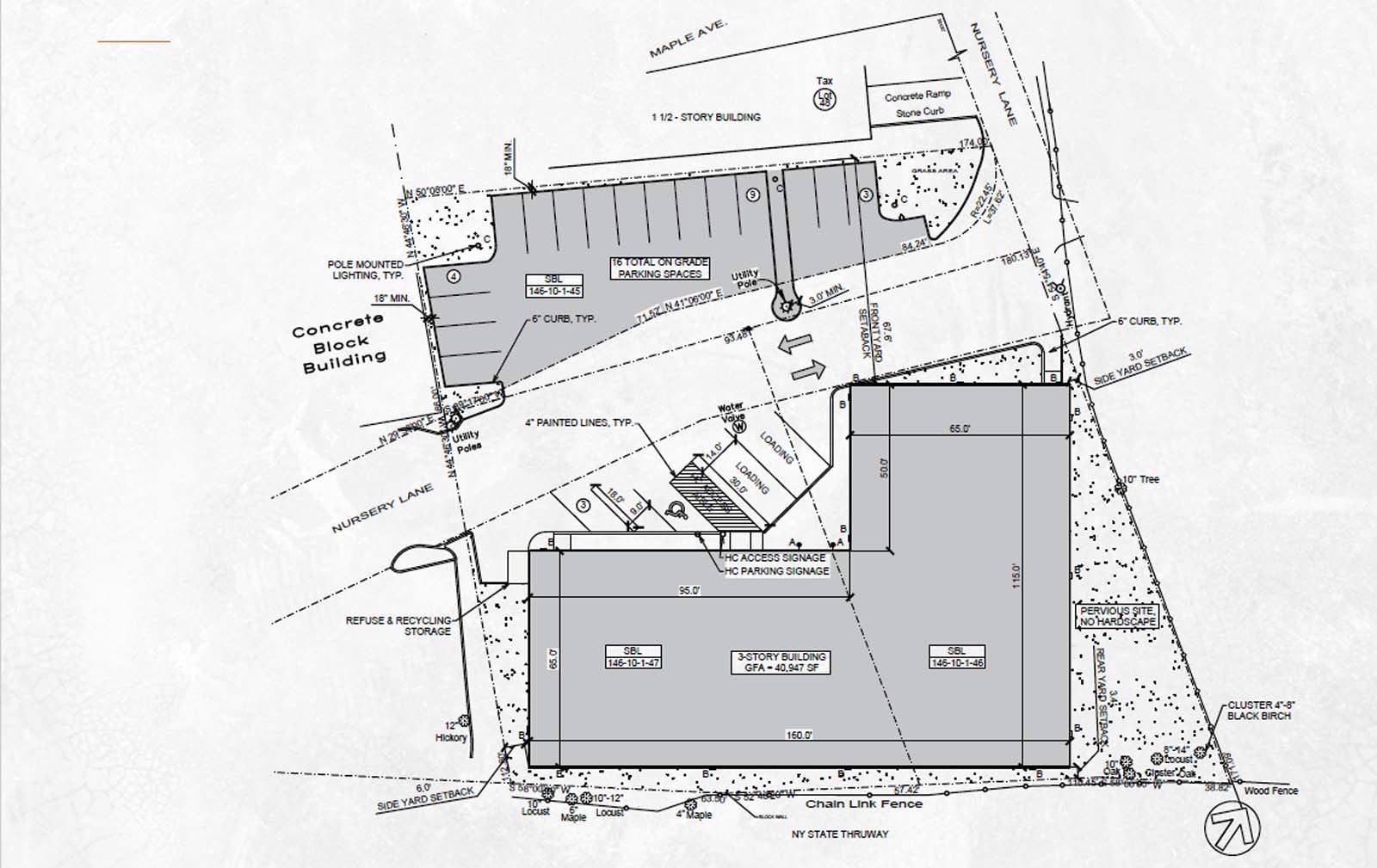
Proposed Site Plan
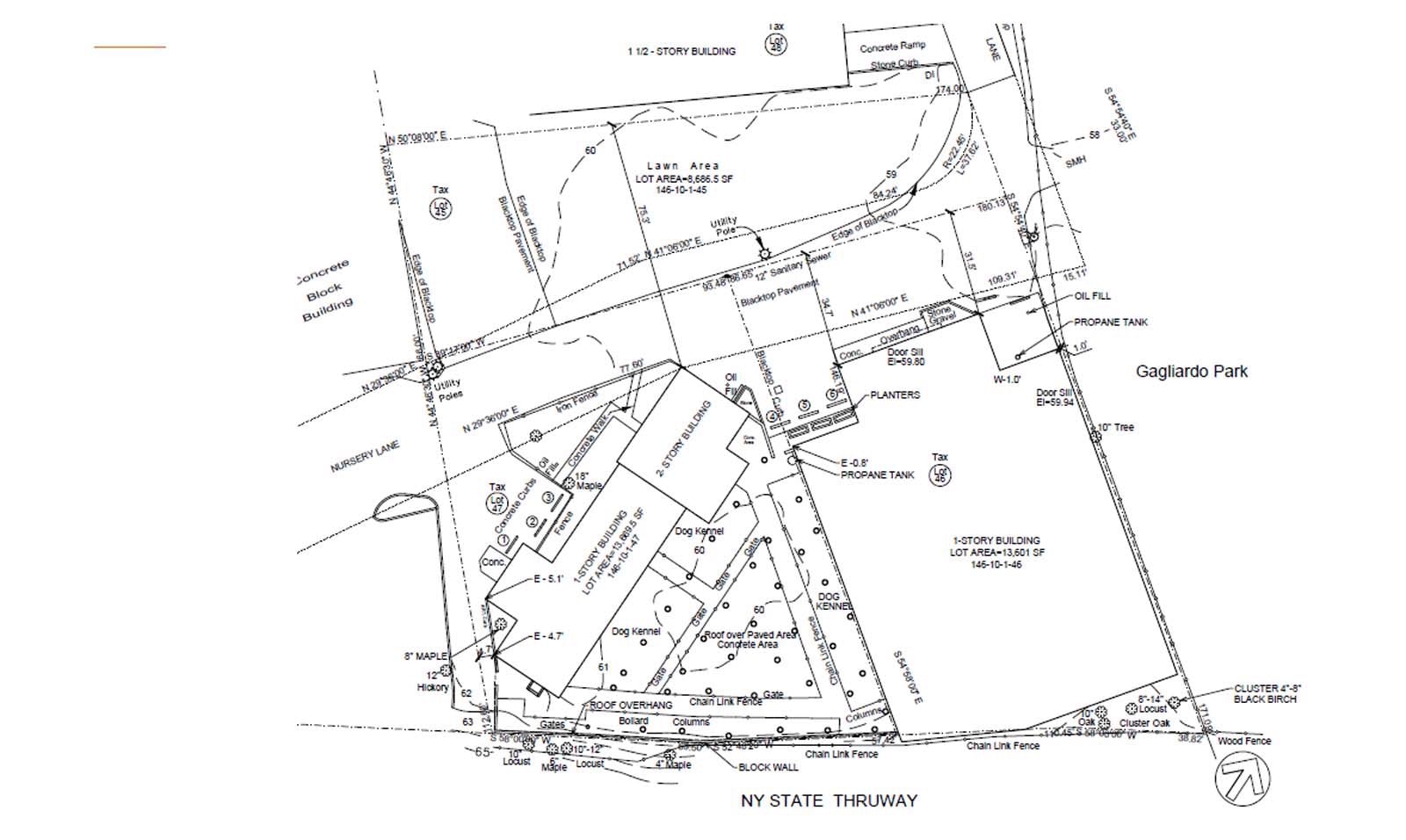
Survey Plan
Property Website
Map
Industrial For Sale - Available Immediately
FULLY ENTITLED SELF-STORAGE DEVELOPMENT OPPORTUNITY
• The only existing self storage facility in the city of Rye, N
• One of the wealthiest areas in the country | $295,000 average household income in the City of Rye
• Potential to add square footage by adding a basement
• Much of the soft cost work already completed
Get in touch
William Cuddy, Jr.
WCJ
Jacqueline Novotny
Self Storage - 328 Climate Controlled Units
The Property is ideally located within minutes to the new 92-unit, luxury St. Regis condominium development in Rye and Avalon’s 143-unit transit oriented development at the Harrison Metro-North Train Station.
The Property abuts the New York State Thruway (Interstate-95) along the rear property line and Gagliardo Park to the north. Several higher intensity commercial uses, such as an automotive repair shop, a print shop and a carpet retailer, are located immediately across Nursery Lane.
The Property abuts the New York State Thruway (Interstate-95) along the rear property line and Gagliardo Park to the north. Several higher intensity commercial uses, such as an automotive repair shop, a print shop and a carpet retailer, are located immediately across Nursery Lane.
Total Space Available
40,960 sqft
Sale Price
Contact Broker For Pricing
Get in touch
William Cuddy, Jr.
WCJ
Jacqueline Novotny