Emerald Pass Avenue

El Paso, TX 79928

For Sale

26.43 ac

Sale Price

Contact Broker For Pricing
View Floor Plans
Brochure
Map
Land For Sale - Available Immediately
Land Available For Sale
Request for Offer #: RFSB No. E2614
Bid Due Date: Wednesday, December 17th, 2:00 PM
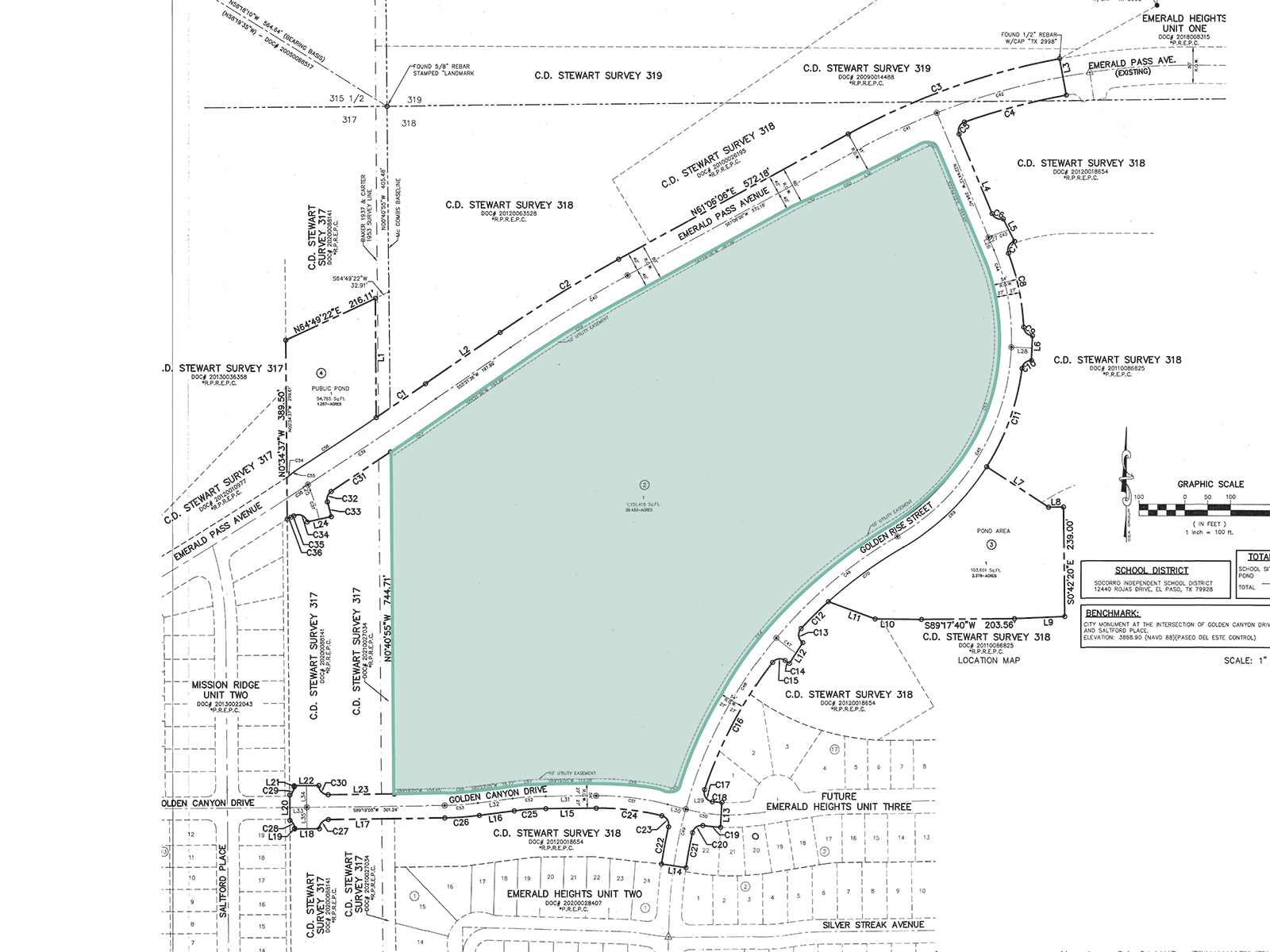
Legal Description: Block 2, Emerald Heights Number 5, Lot 1 and 3
Total Land Area: Approx. 26.433 Acres
Offer Price: At market value as determined at SISD's sole discretion, to be no less than appraised value
Zoned: None, in El Paso County
Utilities*: Available and to the site (*It is Buyer's responsibility to confirm service)
Sale Condition: The property and all existing improvements are sold AS IS AND WITH ALL FAULTS. SISD makes no representations or warranties whatever, express or implied, regarding the condition or use of the property. SISD further DISCLAIMS ALL EXPRESS AND IMPLIED WARRANTIES as to the condition and use of the property and further DISCLAIMS IT IS THE RESPONSIBILITY OF THE OFFEROR OR PURCHASER TO DETERMINE IF THE PROPERTY IS FIT OR SUITABLE FOR ANY PURPOSE OF USE INTENDED BY THE OFFEROR OF PURCHASER.
Use Restrictions: Restrictions appearing of record to include the Declaration of Covenants, Conditions and Restrictions filed and recorded as Doc. No. 20060054662, and Emerald Heights Unit Five plat recorded in Clerk’s File No. 20210107881, of the Real Property Records, El Paso County, Texas, and any additional covenants to run with the land that may be required by SISD to be referenced in conveyance documents to include restrictions on use of the property for any K-12 educational purpose by any entity other than SISD.
Sealed Bid Process: Sealed bid package/materials are available via SISD E-bid link is: https://sisd.ionwave.net/SourcingEvents.aspx?SourceType=1 All offers are to be submitted via SISD’s E-Bid Portal system on or before Thursday, December 18th, 2:00 PM
Get in touch
Chad McCleskey
Chad McCleskey
On behalf of Socorro Independent School District, CBRE, Inc. is pleased to present via SISD’s sealed bid process, approximately 26.433 acres of un-improved land located on Emerald Pass Avenue, just west of Peyton Drive and Eastlake High School. The property is situated within the master-planned Mission Ridge Community in the rapidly expanding East El Paso/Horizon City submarket.

Total Space Available

26.43 ac
26.433 Acres
26.43 ac
Land

Status

Available

Sale Price

Contact Broker For Pricing
SISD Emerald Pass - Land Survey
Get in touch
Chad McCleskey
Chad McCleskey