Multifamily Land in South Sacramento 7270 Stockton Boulevard
Sacramento, CA 95823
For Sale
5.10 ac
Sale Price
$2,450,000
View Floor Plans
Site_Plan
Unit_Layout
Brochure
Map
Land For Sale
5 Acres Multifamily Development Site in South Sacramento
High‑Density Potential: Supports 140–175 garden‑style multifamily units, aligning with current housing demand and Mixed Use Corridor goals.
Strategic Location: Excellent visibility, transit access, and proximity to major retail and employment centers in South Sacramento.
Attractive Pricing: Offered at $2,450,000 (~$11/sq ft), delivering a competitive $14k–$17k per potential unit land basis for developers.
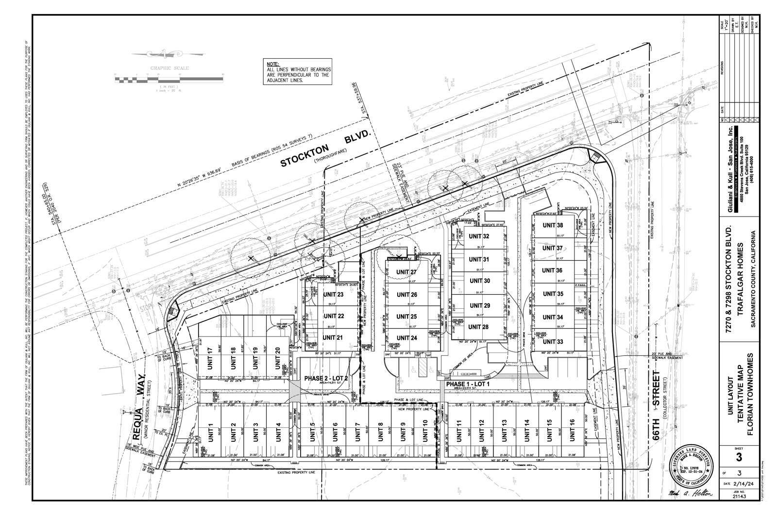
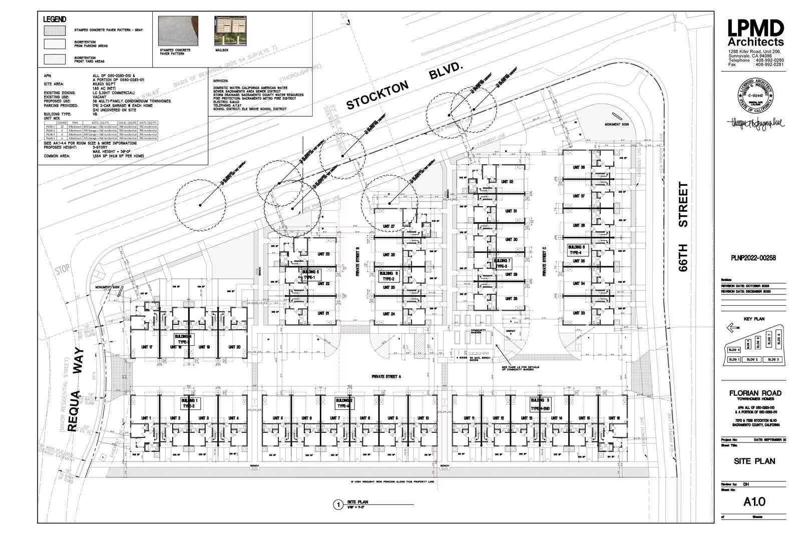
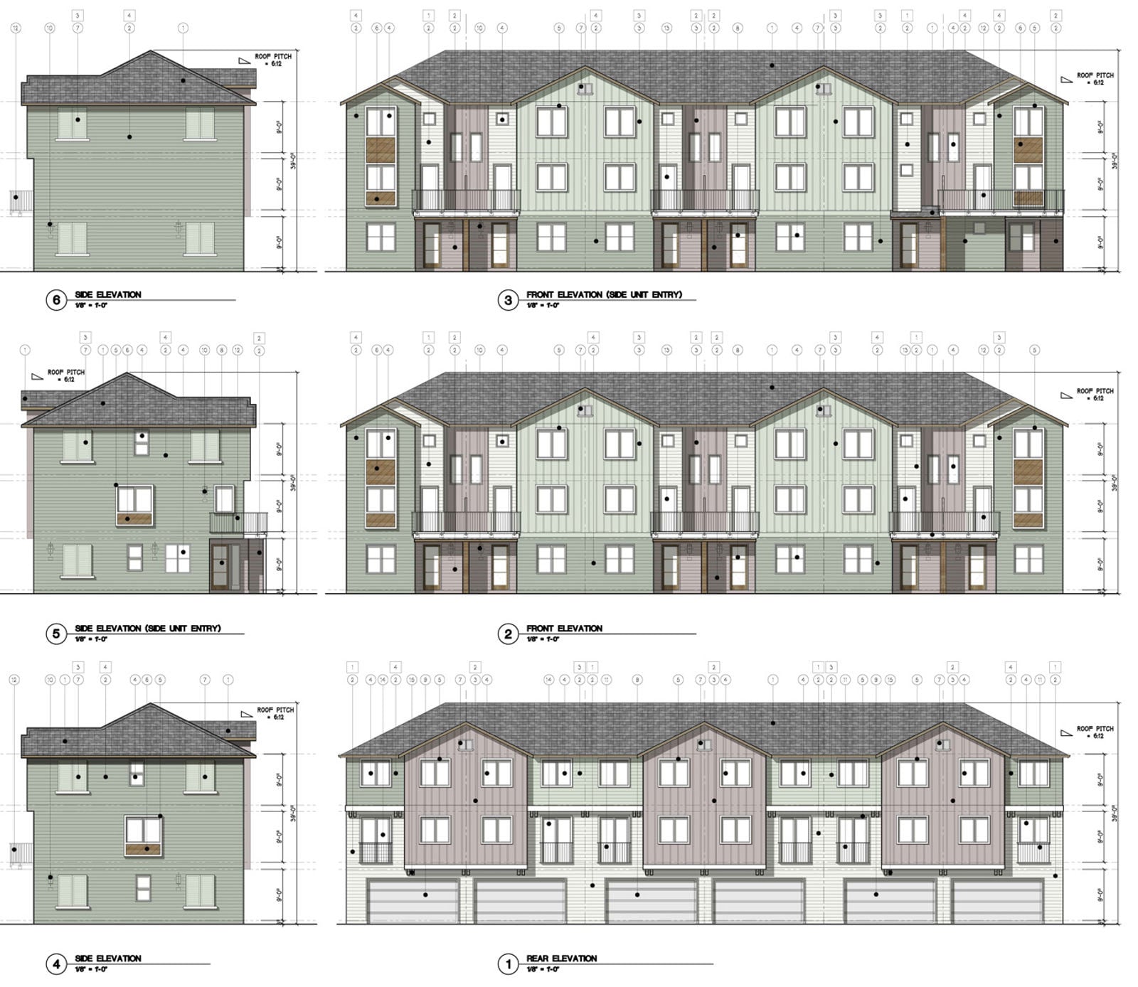
Streamlined Entitlements: Previously approved plans for 38 condominium townhomes on the 2.3 acre parcel, provides a clear path for re-entitling the property for a new design.
Get in touch
Patrick Stelmach
Lic: 01964999
The offering at 7270–7298 Stockton Boulevard represents a rare opportunity
to acquire a unified 5.1‑acre development site strategically positioned within
one of South Sacramento’s most active and rapidly evolving commercial
corridors. Formerly marketed as two separate parcels, the property has now
been repositioned to highlight its strongest and most market‑responsive use: a
high‑density, garden‑style multifamily community supporting approximately 140–
175 units. This aligns with Sacramento County’s broader objectives for increased
housing production within designated Mixed Use Corridors.
The site benefits from LC (Light Commercial) zoning, flat topography, excellent
visibility, and immediate proximity to transit, employment, and retail amenities.
Its location along the Stockton Boulevard corridor provides strong long‑term
fundamentals, supported by continuous reinvestment and residential demand
in the surrounding neighborhoods. One parcel previously secured entitlement
approval for a 38‑units for‑rent townhome subdivision. Instead, the greatest value
lies in re‑entitling the combined acreage into a cohesive multifamily development.
Priced at $2,450,000—approximately $11 per square foot or $14,000–$17,000 per
potential multifamily unit—the property offers compelling land basis advantages
compared to competing sites in the region. This consolidated 5.1‑acre platform
provides developers with economies of scale, streamlined planning potential, and
the flexibility to pursue a high‑impact housing project aligned with Sacramento’s
evolving growth trajectory.
to acquire a unified 5.1‑acre development site strategically positioned within
one of South Sacramento’s most active and rapidly evolving commercial
corridors. Formerly marketed as two separate parcels, the property has now
been repositioned to highlight its strongest and most market‑responsive use: a
high‑density, garden‑style multifamily community supporting approximately 140–
175 units. This aligns with Sacramento County’s broader objectives for increased
housing production within designated Mixed Use Corridors.
The site benefits from LC (Light Commercial) zoning, flat topography, excellent
visibility, and immediate proximity to transit, employment, and retail amenities.
Its location along the Stockton Boulevard corridor provides strong long‑term
fundamentals, supported by continuous reinvestment and residential demand
in the surrounding neighborhoods. One parcel previously secured entitlement
approval for a 38‑units for‑rent townhome subdivision. Instead, the greatest value
lies in re‑entitling the combined acreage into a cohesive multifamily development.
Priced at $2,450,000—approximately $11 per square foot or $14,000–$17,000 per
potential multifamily unit—the property offers compelling land basis advantages
compared to competing sites in the region. This consolidated 5.1‑acre platform
provides developers with economies of scale, streamlined planning potential, and
the flexibility to pursue a high‑impact housing project aligned with Sacramento’s
evolving growth trajectory.
Unmatched Location in a Growing Urban Corridor: Positioned on the west side of Stockton Boulevard between Requa Way and 66th Avenue, this site sits in the heart of South Sacramento’s most active transportation and commercial spine. With excellent visibility, flat topography, and direct access to transit, retail, and services, the property offers immediate development functionality and long‑term economic upside.
Surrounding uses include:
• Multifamily apartments to the south
• Commercial services and additional LC‑zoned land to the east
• Multiple vacant LC parcels offering complementary development potential
• Established residential neighborhoods that reinforce ongoing housing demand
This location provides an ideal launch point for a scaled‑up residential community
that supports the County’s vision for intensified mixed‑use and multifamily infill along
key commercial corridors.
Surrounding uses include:
• Multifamily apartments to the south
• Commercial services and additional LC‑zoned land to the east
• Multiple vacant LC parcels offering complementary development potential
• Established residential neighborhoods that reinforce ongoing housing demand
This location provides an ideal launch point for a scaled‑up residential community
that supports the County’s vision for intensified mixed‑use and multifamily infill along
key commercial corridors.
Total Space Available
5.10 ac
Sale Price
$2,450,000
Get in touch
Patrick Stelmach
Lic: 01964999