Ventura Street
Fillmore, CA 93015
For Sale
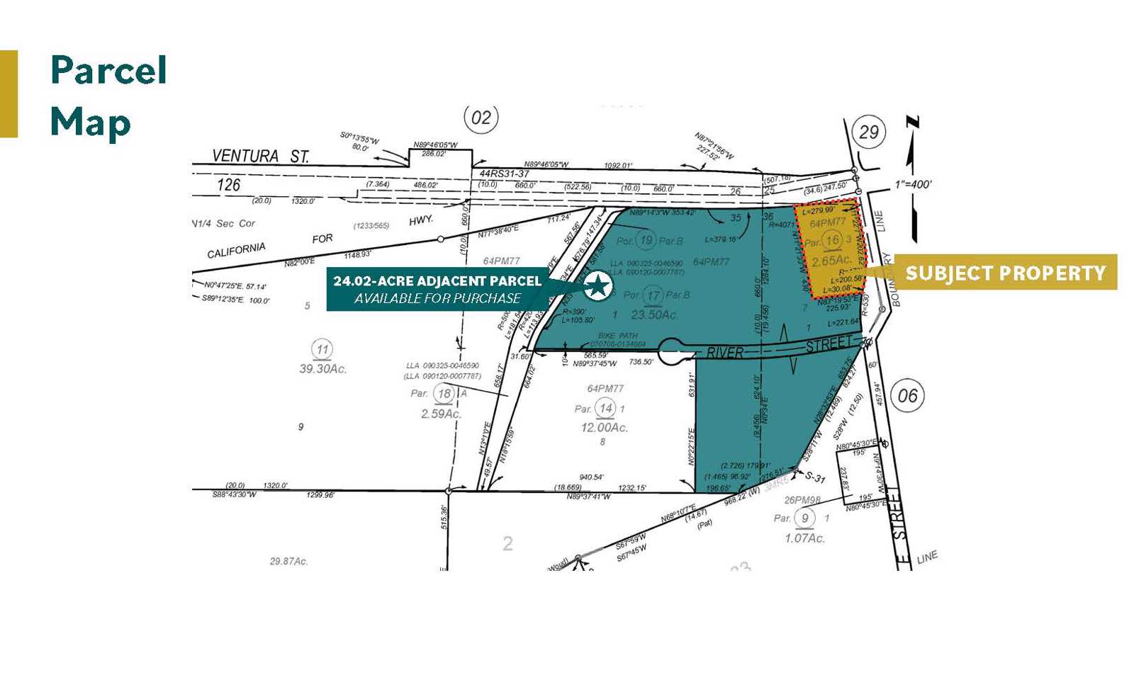
2.65 ac
Sale Price
$2,195,000
View Floor Plans
Brochure
Map
Land For Sale - Available Immediately
±2.65 Acres of Business Park Land For Sale in Fillmore
Get in touch
Craig Peters
Lic: 00906542
CP
Sam Glendon
Lic: 01826689
SG
±2.65 Acres of Industrial/Commercial Land For Sale
Potential to Also Purchase Adjacent 24 Acres for 26.67 Acres
BP-2 Zoning
Potential to Also Purchase Adjacent 24 Acres for 26.67 Acres
BP-2 Zoning
Located Within the Master Planned Fillmore Business Park
Prime Visibility Along Highway 126, 15 Minutes to Valencia
Corner of Highway 126 (Ventura Street and E Street)
Prime Visibility Along Highway 126, 15 Minutes to Valencia
Corner of Highway 126 (Ventura Street and E Street)
Total Space Available
2.65 ac
Sale Price
$2,195,000
Get in touch
Craig Peters
Lic: 00906542
CP
Sam Glendon
Lic: 01826689
SG