3000 Market Street 3000 Market Street

Philadelphia, PA 19104

For Lease

90,556 sqft

Lease Price

Contact Broker For Pricing
View Floor Plans
level 3 floor plan
level 1 floor plan
level 2 floor plan
Brochure
Map
Life Sciences For Lease
90,556 SF Sublease Available
Get in touch
Ina Sargen
IS
Matthew Knowles
Lic: PA
Matthew Knowles
Anthony Pell
Lic: PA
Anthony Pell
Brand new facade, including new windows, roof and full-building curtain wall on the rear of the building. New loading dock with access to lower 30th Street. Ideal for modern, open workspaces or specialty healthcare/lab needs.
Located at the epicenter of Philadelphia’s innovation hub is 3000 Market Street, a rare opportunity to lease a stunning three-story, 90,000 SF building. Situated at the intersection of Schuylkill Yards and 30th Street Station.

Total Space Available

90,556 sqft
1st Floor
30,000 sqft

Status

Available

Lease Type

SubLease

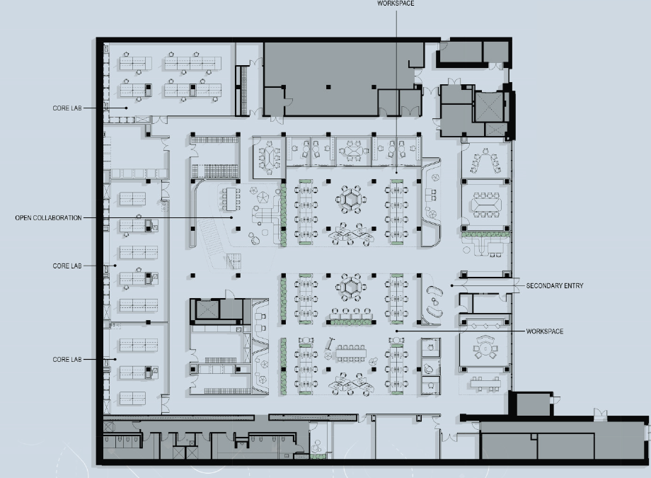
LOADING/FREIGHT, OFFICE AND SUPPORT LABS - Level 1 houses administrative functions and core laboratories, serving as the operational backbone of the building. These essential spaces support both the logistical and scientific needs of the facility
Floorplan

View Floor Plans

2nd Floor
30,000 sqft

Status

Available

Lease Type

SubLease

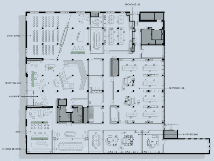
EVENT SPACES, CLASSROOMS, SHOWCASE LABS - Level 2 is designed for public engagement, the second floor features an event space, a café, and showcase labs that invite visitors to explore ongoing research. An open intercommunicating stair activates this level as a hub of interaction, fostering dialogue between researchers and the broader community.
Floorplan

View Floor Plans

3rd Floor

Status

Available

Lease Type

Direct

AUTOMATION AND COMPUTATIONAL LABS - Level 3 hosts a diverse range of labs and interdisciplinary spaces, encouraging collaboration across scientific and creative disciplines. A central collaboration zone provides a shared space for idea exchange, reinforcing the building’s commitment to interdisciplinary innovation
Floorplan

View Floor Plans

Lease Type

SubLease

Lease Rate

Contact Broker For Pricing
level 3 floor plan
level 1 floor plan
level 2 floor plan
Get in touch
Ina Sargen
IS
Matthew Knowles
Lic: PA
Matthew Knowles
Anthony Pell
Lic: PA
Anthony Pell