1545-1547 Columbia Turnpike

CASTLETON, NY 12033

For Sale/Lease

17,012 sqft

Sale Price

$2,200,000

Lease Price

$30,735/mo
View Floor Plans
Brochure
Map
Medical For Sale/Lease - Available Immediately
Medical Facility with Mohs Surgical Center Available
Ideal for 1 to 4 practices
Building size: ±17,012 SF
Portico for patient drop-off and pick-up
Connected to a two story restored brick house that was converted into additional useable space via a glass enclosed walkway
Location Details: • Building is on a corner lot and at a traffic light • ±0.5 mi to I-90 Exit 10 • Located on Miller Road and Route 20
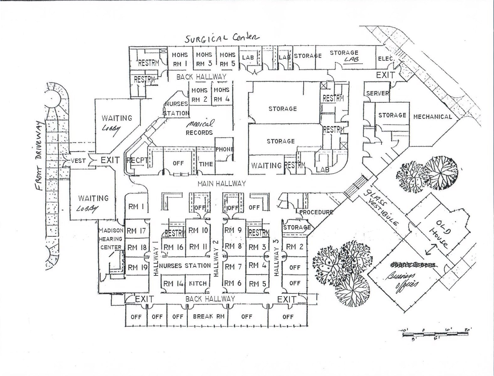
Layout Details: • Surgical suite with 5 procedures rooms • Mohs Surgery Center with an on-site lab • Diagnostic Imaging room for Dermatology • Practice area includes - 16 exam rooms - Large procedure room - Separate Lab - 8 offices
Thoughtful layout supports an efficient seamless workflow for both patients and staff. The layout includes: Numerous exam rooms (see floor plan), Laser and procedure rooms, Surgical Suite, Pre-op and post-op areas, Recovery space, Sterile processing room
Mohs surgical center is separately positioned but directly connected to the main dermatology clinic and Mohs lab, allowing for a circular flow throughout the facility.
Specialties needed in this community include: Mental Health, Urgent Care, OBGYN/Womens Health, Physical Therapy & Rehab, Chronic Disease Management
Parking: ±87 spaces
Acres: ±4.85
Egress: multiple exits
Building is ADA compliant
Mohs surgical center is separately positioned but directly connected to the main dermatology clinic and Mohs lab, allowing for a circular flow throughout the facility.
Specialties needed in this community include: Mental Health, Urgent Care, OBGYN/Women’s Health, Physical Therapy & Rehab, Chronic Disease Management.
Get in touch
Laurie Tylenda
Lic: Associate Real Estate Broker
Laurie Tylenda
Brooke Stack
Lic: Associate Real Estate Broker
Brooke Stack
New York - Albany
Facility with a well established and respected ±17,012 SF medical and surgical skincare facility available for sale or lease. While the practice is thriving, they don‘t need the entire building, so it can accommodate another tenant, or the practice can relocate if a user needs the entire building.
Southeast corner of Columbia Tpke (Routes 9 & 20) and Miller Road. Building is 1/2 mile west of I-90 Exit 10

Total Space Available

17,012 sqft

Lease Type

Direct

Sale Price

$2,200,000

Lease Rate

$30,735/mo

Lease Rate Type

Triple Net (NNN)
1 Mile 3 Miles 5 Miles
Population 3,042 13,634 30,601
Median Household Income $1,005,310 $102,304 $100,798
Daytime Population 2,042 13,634 30,601
1547 Columbia Turnpike floorplan
Get in touch
Laurie Tylenda
Lic: Associate Real Estate Broker
Laurie Tylenda
Brooke Stack
Lic: Associate Real Estate Broker
Brooke Stack
New York - Albany