81 Schoolhouse Road

Albany, NY 12203

For Lease

1,092 sqft

Lease Price

$2,500/mo
View Floor Plans
Brochure
Map
Medical For Lease - Available Immediately
Medical Suite for Lease
4 Exam/patient rooms
Reception
Storage room
Shared kitchen area
Janitorial included (non-medical waste)
Tenant pays electric
Easy access off I-87 & I-90, located just off Western Avenue (Route 20)
Get in touch
Brooke Stack
Lic: Associate Real Estate Broker
Brooke Stack
Laurie Tylenda
Lic: Associate Real Estate Broker
Laurie Tylenda
New York - Albany
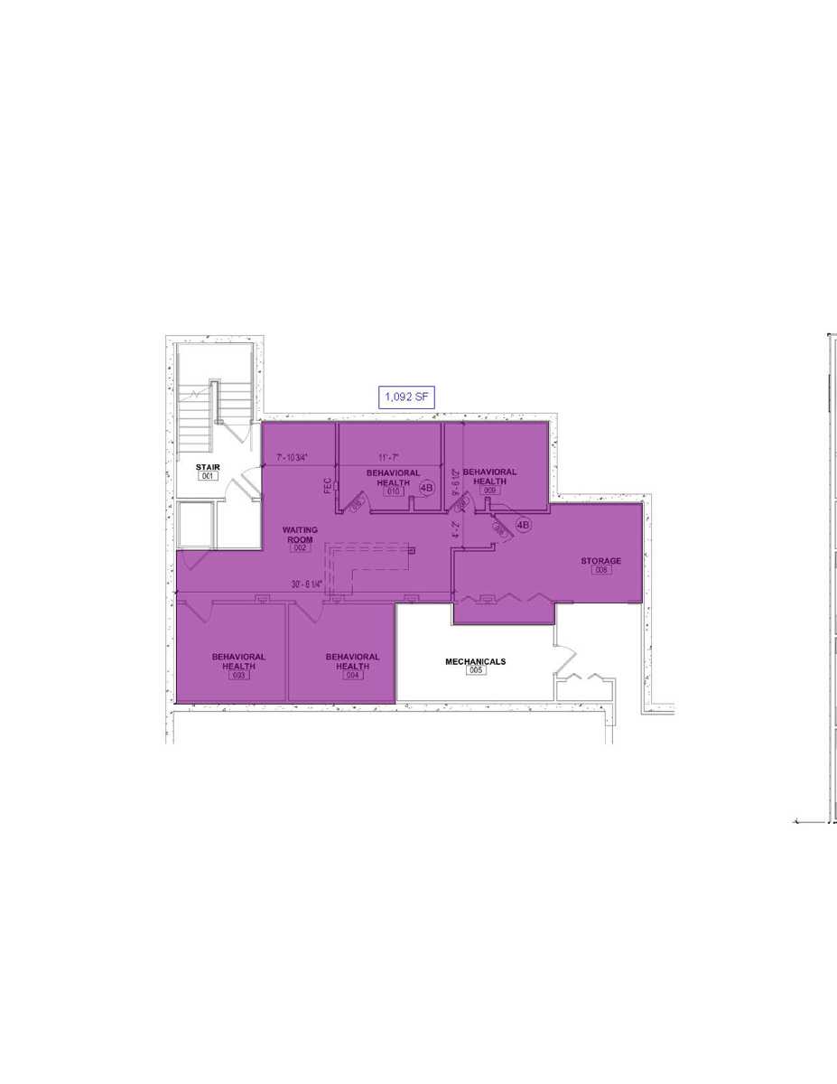
Offered for lease is a beautiful, lower level ±1,092 USF suite in a larger building with a pediatric group. Layout features four (4) exam rooms, reception, shared kitchen, and a large storage area.
Western Avenue to Schoolhouse Road

Total Space Available

1,092 sqft

Lease Type

Direct

Lease Rate

$2,500/mo

Lease Rate Type

Modified Gross (MG)
Schoolhouse Peds Basement Plan
Get in touch
Brooke Stack
Lic: Associate Real Estate Broker
Brooke Stack
Laurie Tylenda
Lic: Associate Real Estate Broker
Laurie Tylenda
New York - Albany