Germantown House 5457 Wayne Avenue

Philadelphia, PA 19144

For Lease

10,000 sqft

Lease Price

Contact Broker For Pricing
View Floor Plans
Brochure
Map
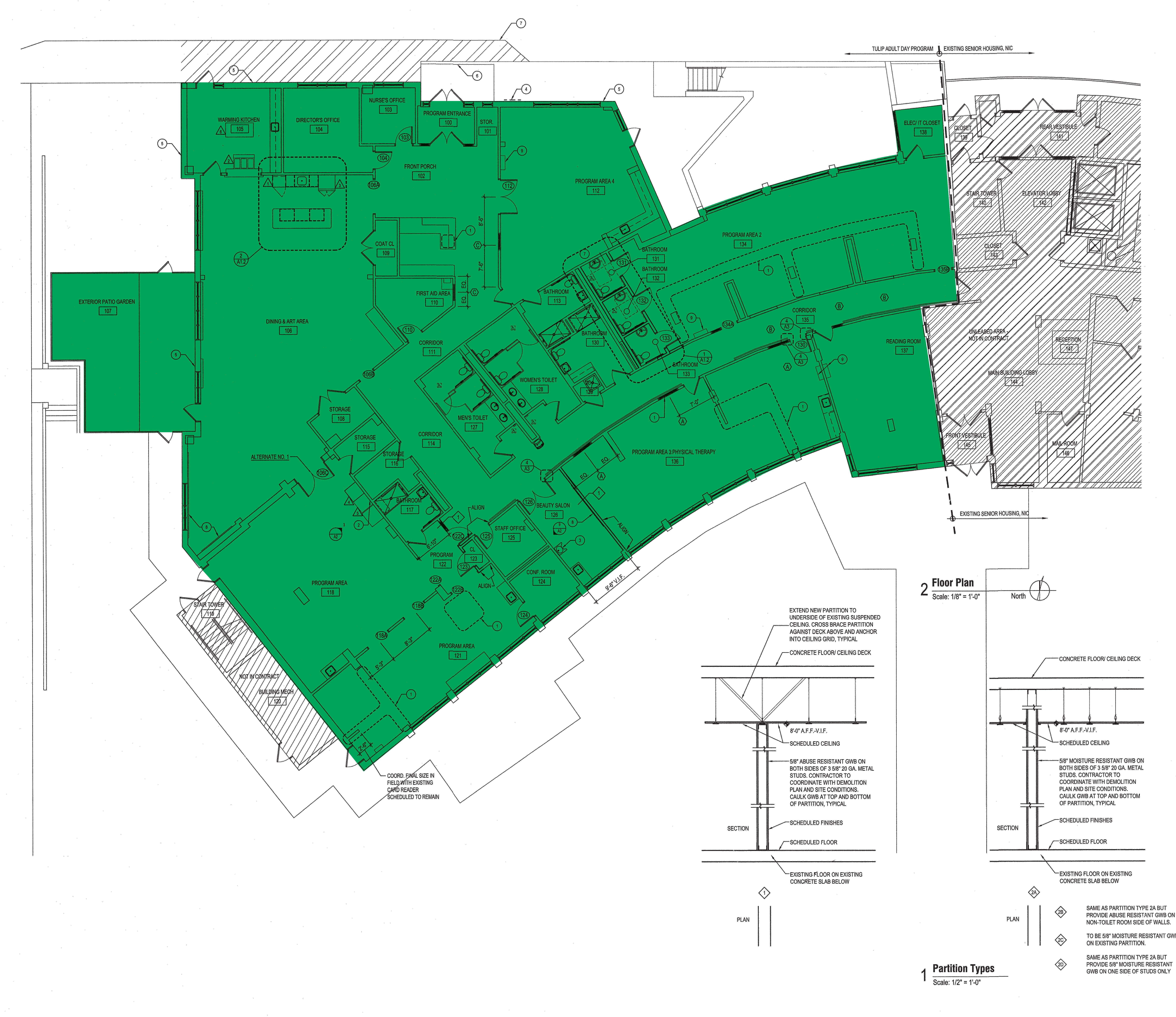
Medical For Lease - Available Immediately
1st Floor Office/Medical Space Available
10,000 SF
5 Large Rooms
8 Bathrooms
Warming Kitchen
Off Street Parking Available
133 Senior Housing Units above Space (16 2-bedroom, 117 1-bedroom)
Former New Courtland Senior Day Center Space
Get in touch
Mike Kane
Mike Kane
Les Haggett
LH
Germantown House is a public housing facility designated for seniors and located in the historic Germantown neighborhood of Philadelphia. The development is located near shopping centers, banks, and a library, with great access to public transportation via the K bus and the 53 bus.

Total Space Available

10,000 sqft
1st Floor Office/Medical Space
10,000 sqft
Office

Status

Available

Lease Type

Direct

Lease Type

Direct

Lease Rate

Contact Broker For Pricing
Germantown House Plan (color)
Get in touch
Mike Kane
Mike Kane
Les Haggett
LH