Parkway Medical Building 3500 Northwest 56th Street

Oklahoma City, OK 73112

For Lease

1,654 - 25,186 sqft

Lease Price

$23.50/sqft
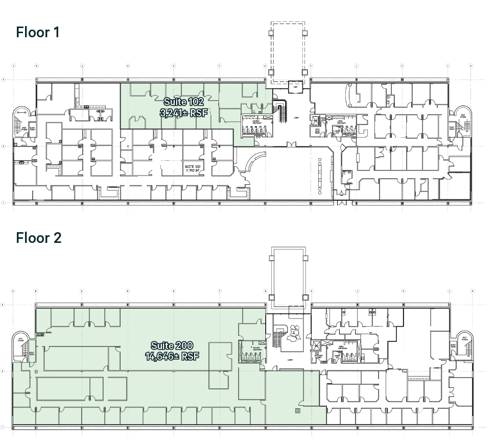
View Floor Plans
Brochure
Map
Medical For Lease - Available Immediately
Move-In Ready Medical Clinic Available Now
Building size: 45,052 SF
Two (2) Stories
Floor size: 22,526 SF
Built in 1980, renovated in 2023
247 Surface parking spaces
Can be divided
Medical office space
1,654 SF; Move-in ready medical clinic
Get in touch
Amy Dunn, CCIM
Amy Dunn, CCIM
Stuart Graham
Stuart Graham
The Parkway Medical Building, a two-story structure spanning 45,052 square feet, enjoys a prime location in Oklahoma City, at the crossroads of Northwest 56th Street and North Grand Boulevard. This locally owned and managed property is an ideal choice for healthcare use.
Overlooking Lake Hefner Parkway, this property boasts unparalleled access and visibility. It is conveniently located near the Baptist Integris campus, a variety of restaurants, Penn Square Mall, and several hotels.

Minimum Space Available

1,654 sqft

Total Space Available

25,186 sqft

Lease Type

Direct

Lease Rate

$23.50/sqft

Lease Rate Type

Full Service Gross (FSG)
Floor Plans.JPG
Get in touch
Amy Dunn, CCIM
Amy Dunn, CCIM
Stuart Graham
Stuart Graham