Energy Crossing I 15021 Katy Freeway

Houston, TX 77094

For Lease

12,001 sqft

Lease Price

Contact Broker For Pricing
View Floor Plans
Brochure
Map
Office For Lease - Available Immediately
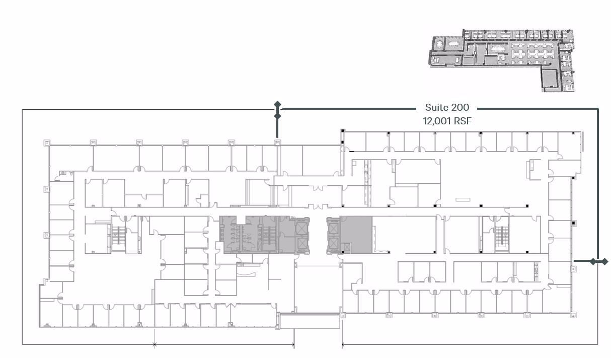
Energy Crossing I: Sublease Floor 2, Suite 200: 12,001 RSF
SUBLEASE TERM: Through February 28, 2025
ASKING NET RATE: Withheld
OPERATING EXPENSES: ~ $14.90/RSF
TENANT IMPROVEMENT: As-is
FURNITURE: Negotiable
OCCUPANCY: 30-60 Days
PARKING: 5.0/1,000 available: Reserved @ $50.00/space/mo. - Unreserved: No charge
Get in touch
Eugene Terry
Lic: 642228
Eugene Terry

Minimum Space Available

12,001 sqft

Total Space Available

12,001 sqft

Lease Type

SubLease

Lease Rate

Contact Broker For Pricing

Lease Rate Type

Net
Ste 200_12,001 RSF.JPG
Get in touch
Eugene Terry
Lic: 642228
Eugene Terry