Garden Hills Office Park 2827 Peachtree Road Northeast
Atlanta, GA 30305
For Lease
9,000 sqft
Lease Price
Contact Broker For Pricing
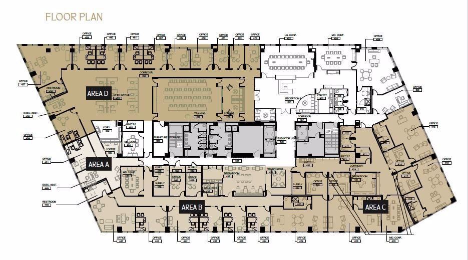
View Floor Plans
Brochure
Map
Office For Lease
BUCKHEAD’S MOST COVETABLE OFFICE ADDRESS
On-Site Personal Training Available
Boutique-Designed Meeting Spaces
Multiple Nearby Dining Options
Spacious Rooftop Patio
Get in touch
Paul Holmes
22,907 RSF of Class A Office Built in 2023.
9 Private Offices, Reception, 2 Breakrooms, and Conference Room.
7,000 SF Private Fitness Center, Covered Motor Court Entry,
Highly Accessible Parking Deck with Multiple Entry Points.
9 Private Offices, Reception, 2 Breakrooms, and Conference Room.
7,000 SF Private Fitness Center, Covered Motor Court Entry,
Highly Accessible Parking Deck with Multiple Entry Points.
Prime Buckhead Location, Signalized Access to Peachtree Rd,
Direct access to Rumson and Peachtree Roads,
20 Minute Trip Time to Hartsfield- Jackson Airport.
Direct access to Rumson and Peachtree Roads,
20 Minute Trip Time to Hartsfield- Jackson Airport.
Minimum Space Available
9,000 sqft
Total Space Available
9,000 sqft
Lease Type
SubLease
Lease Rate
Contact Broker For Pricing
Get in touch
Paul Holmes