First Insurance Center of Hawaii Floor 5 1100 Ward Avenue
Honolulu, HI 96814
For Lease
22,391 sqft
Lease Price
Contact Broker For Pricing
View Floor Plans
Brochure
Map
Office For Lease - Available May 2024
For Sublease | First Insurance Center | 17,148 RSF Office | 5,243 RSF Commercial Kitchen
Get in touch
Serena C. Longo
Lic: RS-74888
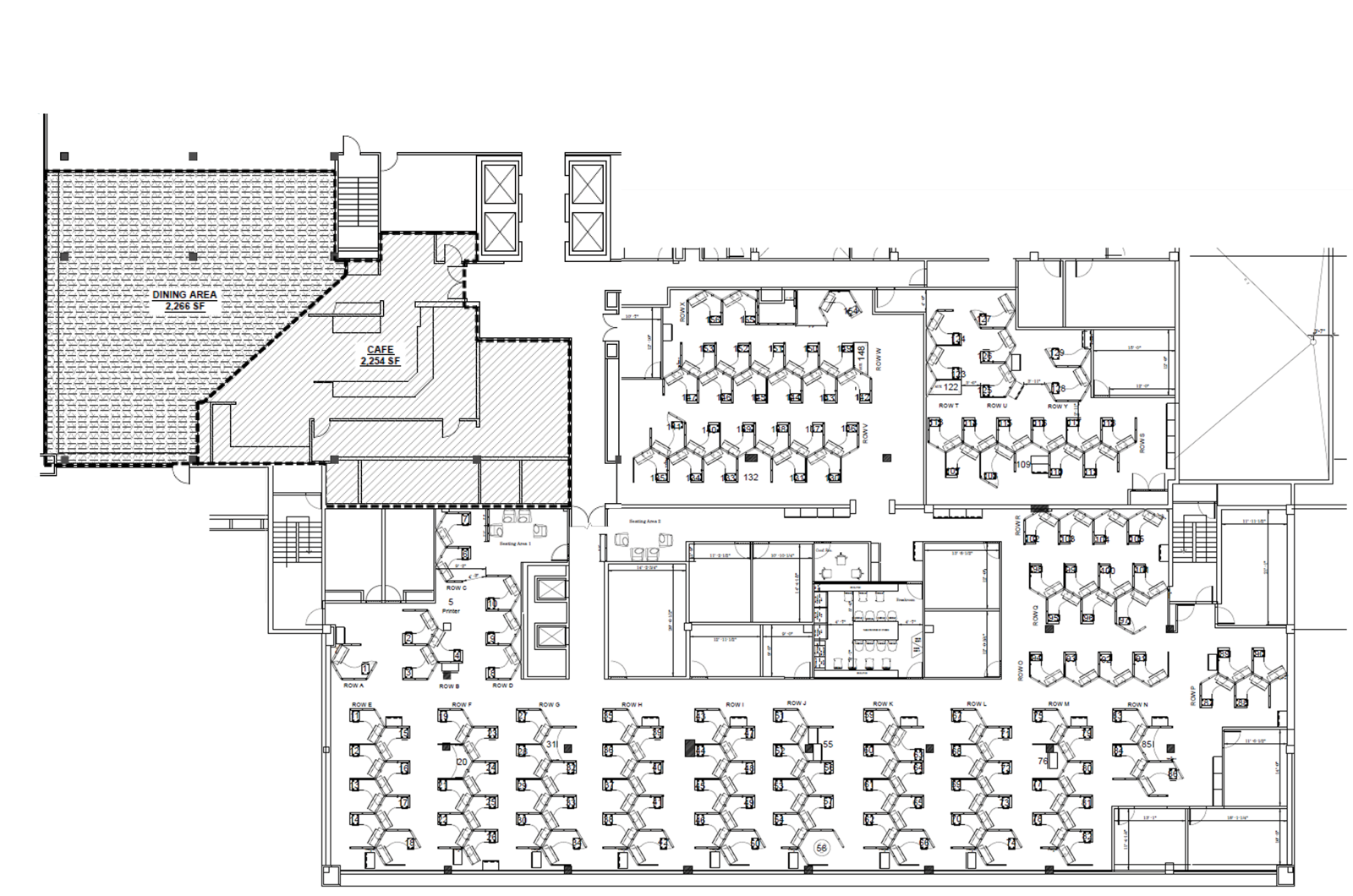
CBRE is pleased to present the rare opportunity to sublease 17,148 RSF of office
space and 5,243 RSF of commercial kitchen space on one floor. The recently renovated space is fully furnished and ready to occupy. The office portion has over 150 workstations, two conference rooms, two window offices, eight interior offices and a kitchenette. The cafeteria has a full commercial kitchen. and operator who is month-to-month.
Space Overview
+Office Space: 17,148 RSF
+ Cafeteria Space: 5,243 RSF
+ Sublease Term: February 28, 2033
+ Base Rent: Negotiable
+OPEX: $1.90/RSF/Mo
+ Parking Ratio: 1 per 400 RSF
+ 6 Private Offices & 2 Conference Rooms
space and 5,243 RSF of commercial kitchen space on one floor. The recently renovated space is fully furnished and ready to occupy. The office portion has over 150 workstations, two conference rooms, two window offices, eight interior offices and a kitchenette. The cafeteria has a full commercial kitchen. and operator who is month-to-month.
Space Overview
+Office Space: 17,148 RSF
+ Cafeteria Space: 5,243 RSF
+ Sublease Term: February 28, 2033
+ Base Rent: Negotiable
+OPEX: $1.90/RSF/Mo
+ Parking Ratio: 1 per 400 RSF
+ 6 Private Offices & 2 Conference Rooms
First Insurance Center is situated in the vibrant Kakaako-Kapiolani submarket of Honolulu. The location offers convenient access to the freeway, downtown and Waikiki. The property is adjacent to Straub Medical Center, The Honolulu Museum of Art and Neal S. Blaisdell Center
Minimum Space Available
22,391 sqft
Total Space Available
22,391 sqft
Lease Type
SubLease
Lease Rate
Contact Broker For Pricing
Lease Rate Type
Triple Net (NNN)
Get in touch
Serena C. Longo
Lic: RS-74888