829 Isenberg Street

Honolulu, HI 96826

For Sale

2,356 sqft

Sale Price

Contact Broker For Pricing
View Floor Plans
Brochure
Video
Property Website
Map
Office For Sale - Available October 2025
Fee Simple Single Story Free-Standing Building
Owner-user opportunity
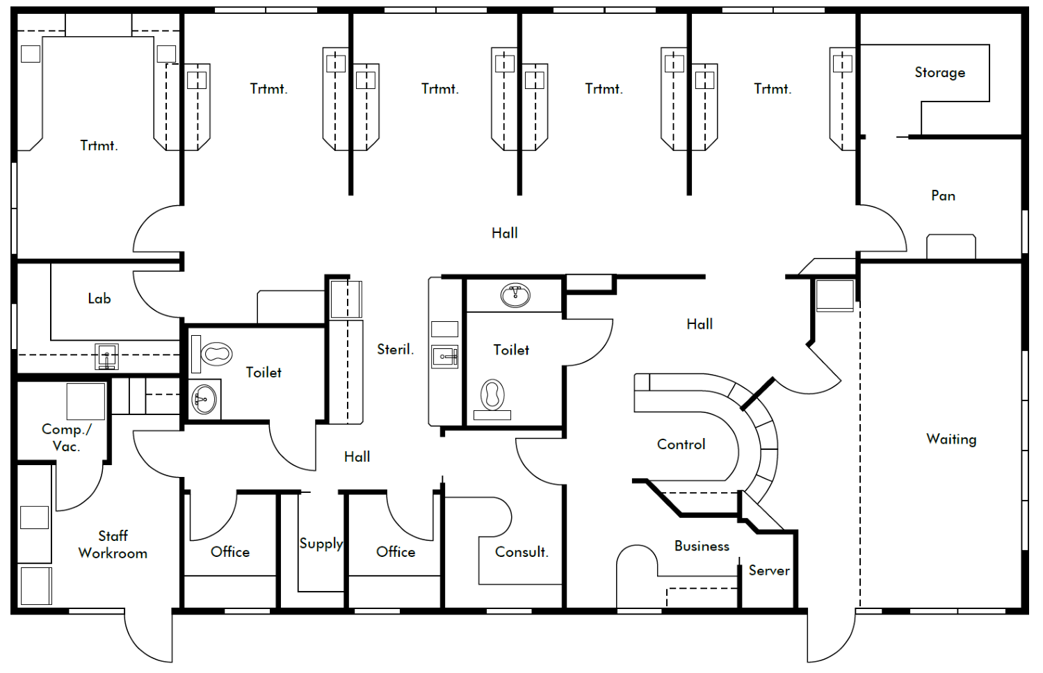
Specifically designed for a dental office/clinic
BMX-3 Business mixed use community
Conveniently located within proximity of densely populated residential area and nearby retail
Get in touch
Nicholas Paulic
Lic: RB-22952
Nicholas Paulic
AJ Cordero
Lic: RB-24096
AJ Cordero
Eric Zheng
Lic: RS-85703
Eric Zheng
Fee simple single story free-standing building with ample parking in the heart of Moiliili area, ideal for an owner user Currently, the building is being utilized as a dental office. Zoning (BMX-3 Business mixed use community) allows for a wide array of potential uses. The building was built in 2014 and specifically designed for a dental office/clinic. Conveniently located off Isenberg Street the main thoroughfare bordering McCully/ Moiliili and Waikiki areas within proximity of densely populated residential area, nearby retail, and future planned mixed-use developments.
Owner-user opportunity to purchase a free standing building built in 2014 zoned BMX-3 with 14 on site parking stalls in the heart of Moiliili. The property is located off Isenberg Street which connects to two main throughfares S King Street and Kapiolani Blvd. Designed by dental office specialist Architect Micheal Unthank of Unthank Design group.

Total Space Available

2,356 sqft

Sale Price

Contact Broker For Pricing
829 Isenberg Floorplan
Get in touch
Nicholas Paulic
Lic: RB-22952
Nicholas Paulic
AJ Cordero
Lic: RB-24096
AJ Cordero
Eric Zheng
Lic: RS-85703
Eric Zheng