Inwood Village 2806 West Bitters Road

San Antonio, TX 78248

For Lease

2,896 sqft

Lease Price

Contact Broker For Pricing
View Floor Plans
Brochure
Map
Office For Lease
Colorful, Clean, Modern.
Conference Room
Tenant Lounge
Outdoor Patio & Deck
Picnic Tables
Reserved Parking
On-Site Management
Get in touch
Jenny Park Gallegos
Jenny Park Gallegos
Amber Austin
Amber Austin
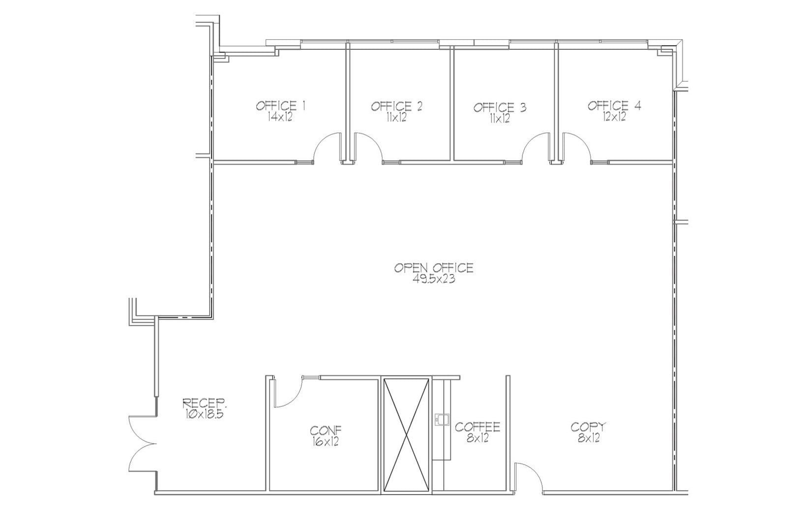
Stunning high-end office completely ready for move-in right off Loop 1604 and Bitters Road on the Northwest. As soon as you walk into the building, this office greets you with frameless glass doors, an expansive entry, and a conference room equip with seating for ten. Moving beyond reception, you’ll find a roomy breakroom with stainless steel appliances, storage, and mounted TV. The rest of the office features 7 offices, 1 huddle, 2 phone rooms, a work/copy room, IT room, and 12 open workstations.

Total Space Available

2,896 sqft
Suite 219
2,896 sqft
Office

Status

Available

Lease Type

SubLease

Sublease Expiration 02/28/2027

Lease Type

SubLease

Lease Rate

Contact Broker For Pricing

Lease Rate Type

Modified Gross (MG)
Floor plan- Suite 219 2,896 RSF
Get in touch
Jenny Park Gallegos
Jenny Park Gallegos
Amber Austin
Amber Austin