The Union 2300 North Field Street

Dallas, TX 75201

For Lease

5,506 sqft

Lease Price

Contact Broker For Pricing
View Floor Plans
Brochure
Map
Office For Lease
UNIQUE OPPORTUNITY IN TROPHY BUILDING
Get in touch
Vada Hayes
Vada Hayes
Harlan Davis
Harlan Davis

Total Space Available

5,506 sqft

Lease Type

SubLease

Lease Rate

Contact Broker For Pricing

Lease Rate Type

Triple Net (NNN)
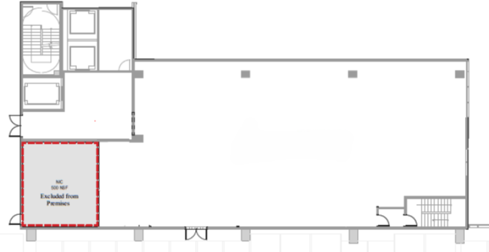
Floorplan
Get in touch
Vada Hayes
Vada Hayes
Harlan Davis
Harlan Davis