Watermark 9 - Suite 112 5440 Mariner Street

Tampa, FL 33609

For Lease

3,816 sqft

Lease Price

Contact Broker For Pricing
View Floor Plans
Map
Office For Lease
Furniture Available!
3,816 RSF
Lease Expiration: 12/31/2027
Parking Ratio: 3.62/1,000 SF
Get in touch
Alyssa Scott
AS
Discover Watermark 9, an exquisite waterfront office building nestled in the vibrant Westshore submarket. This property boasts recently updated common areas and an elegant lobby highlighted by a stunning spiral staircase. With floor-to-ceiling windows, the space is flooded with natural light. Enjoy seamless access to I-275, the Veterans Expressway, and Pinellas County through the Howard Frankland Bridge. Plus, it’s conveniently located just 5 miles from Downtown Tampa, under 1 mile from Westshore Mall, and only 2 miles south of International Plaza.

Total Space Available

3,816 sqft

Lease Type

SubLease

Lease Rate

Contact Broker For Pricing

Lease Rate Type

Full Service Gross (FSG)
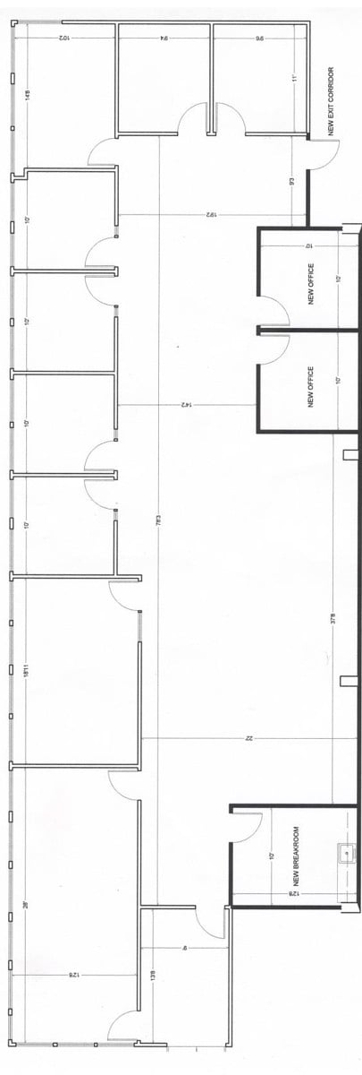
Floorplan
Get in touch
Alyssa Scott
AS