2201 12th St N. Suite E Fargo, ND 2201 12th Street North
Fargo, ND 58102
For Lease
15,000 sqft
Lease Price
$9.50/yr
View Floor Plans
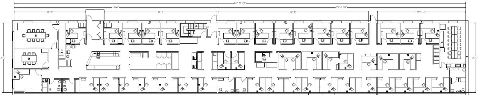
Main Floor FP
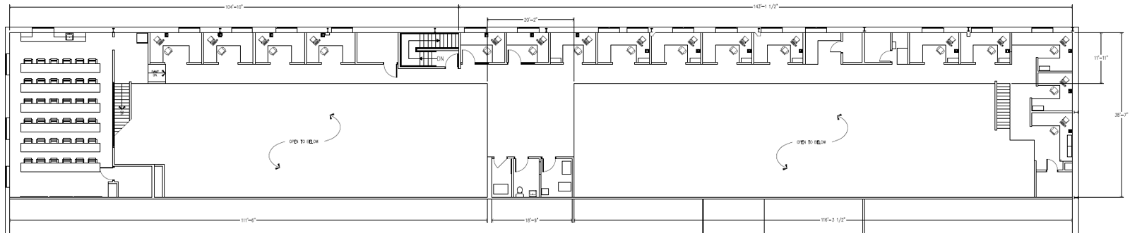
2nd Floor FP
Brochure
Build to Suit Option.pdf
2201 12th St N. Fargo, ND Brochure OFFICE.pdf
Map
Office For Lease - Available July 2025
15,000 SF Turn-Key Office Space
Turn-Key Office
Two-Story Open Work Area
Kitchens & Break Room
Conference Rooms
Large Training Room
Mix of Cubicles & Private Offices
Abundant Parking
Get in touch
Chance Lindsey
Kyle Ferderer
CBRE is pleased to present 15,000 SF of turn-key office space. This open workspace features a good mix of cubicles, private offices, conference rooms, kitchen/break rooms, and a large training room. Conveniently located 2 miles from I-29 and just off N. University Dr., this office space is move in ready and has plenty of employee parking.
Also offered as a build-to-suit solution, the space accommodates varying space requirements from 1,600 SF - 15,000 SF.
Also offered as a build-to-suit solution, the space accommodates varying space requirements from 1,600 SF - 15,000 SF.
Conveniently located 2 miles from I-29 and just off N. University Dr.
Minimum Space Available
15,000 sqft
Total Space Available
15,000 sqft
Lease Type
Direct
Lease Rate
$9.50/yr
Lease Rate Type
Triple Net (NNN)
Get in touch
Chance Lindsey
Kyle Ferderer